


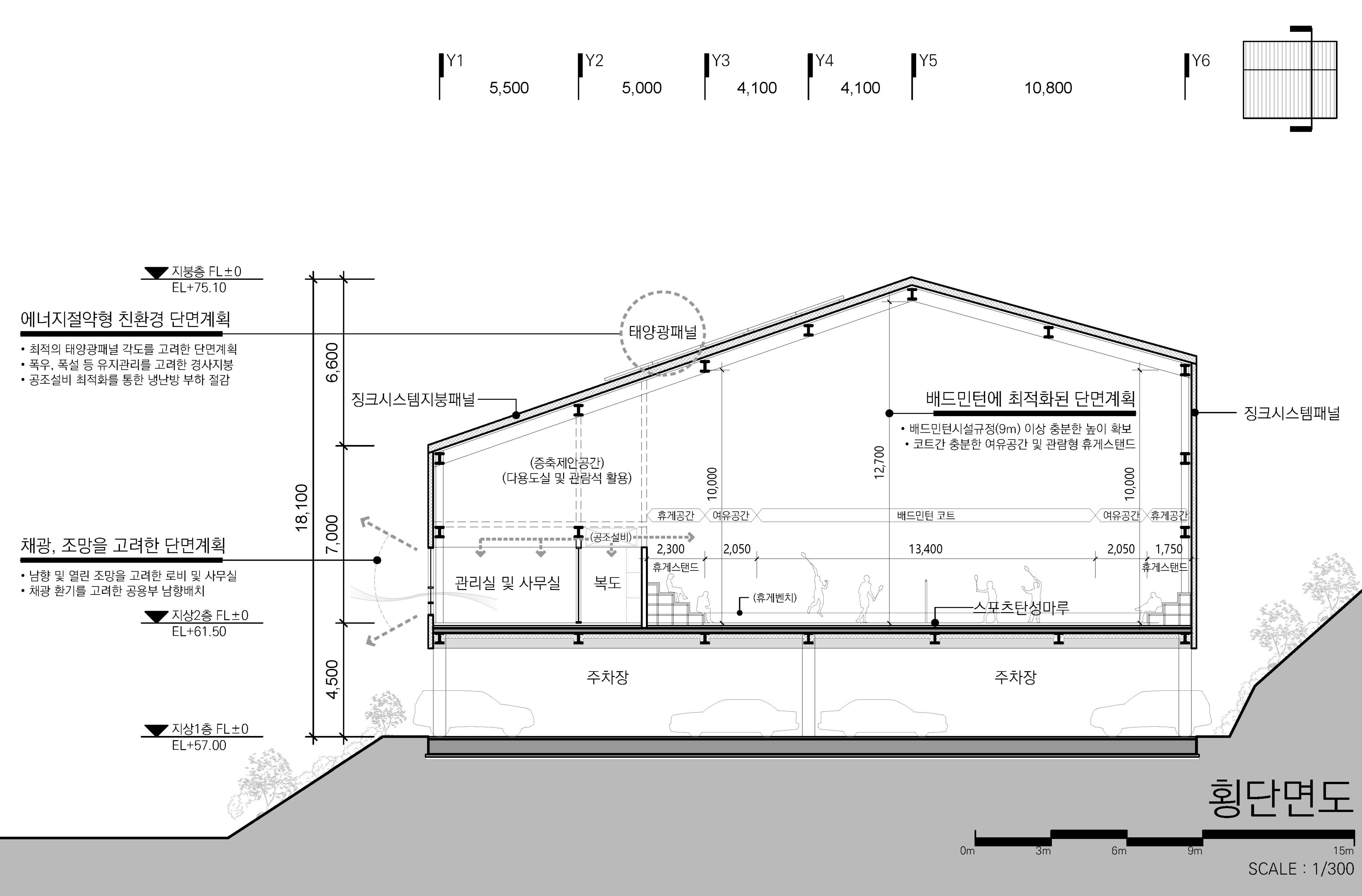
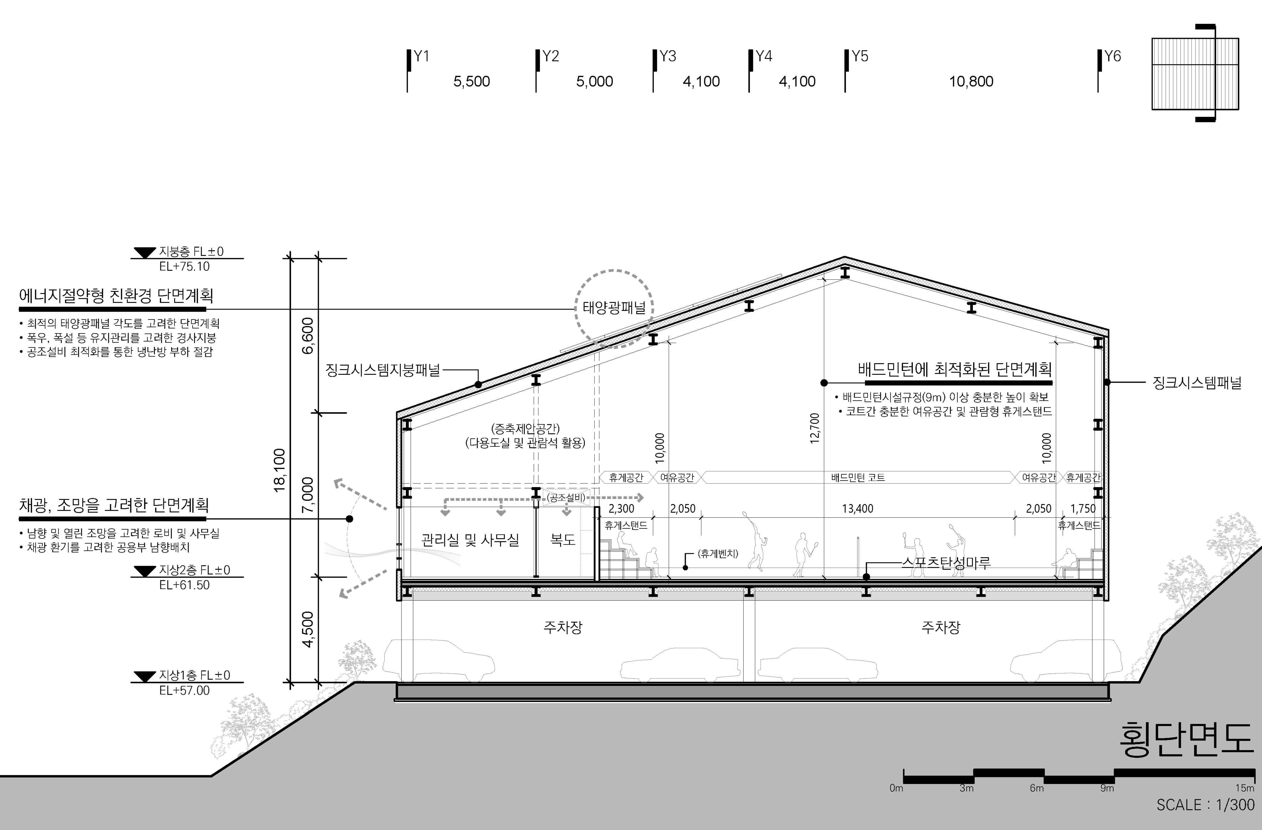
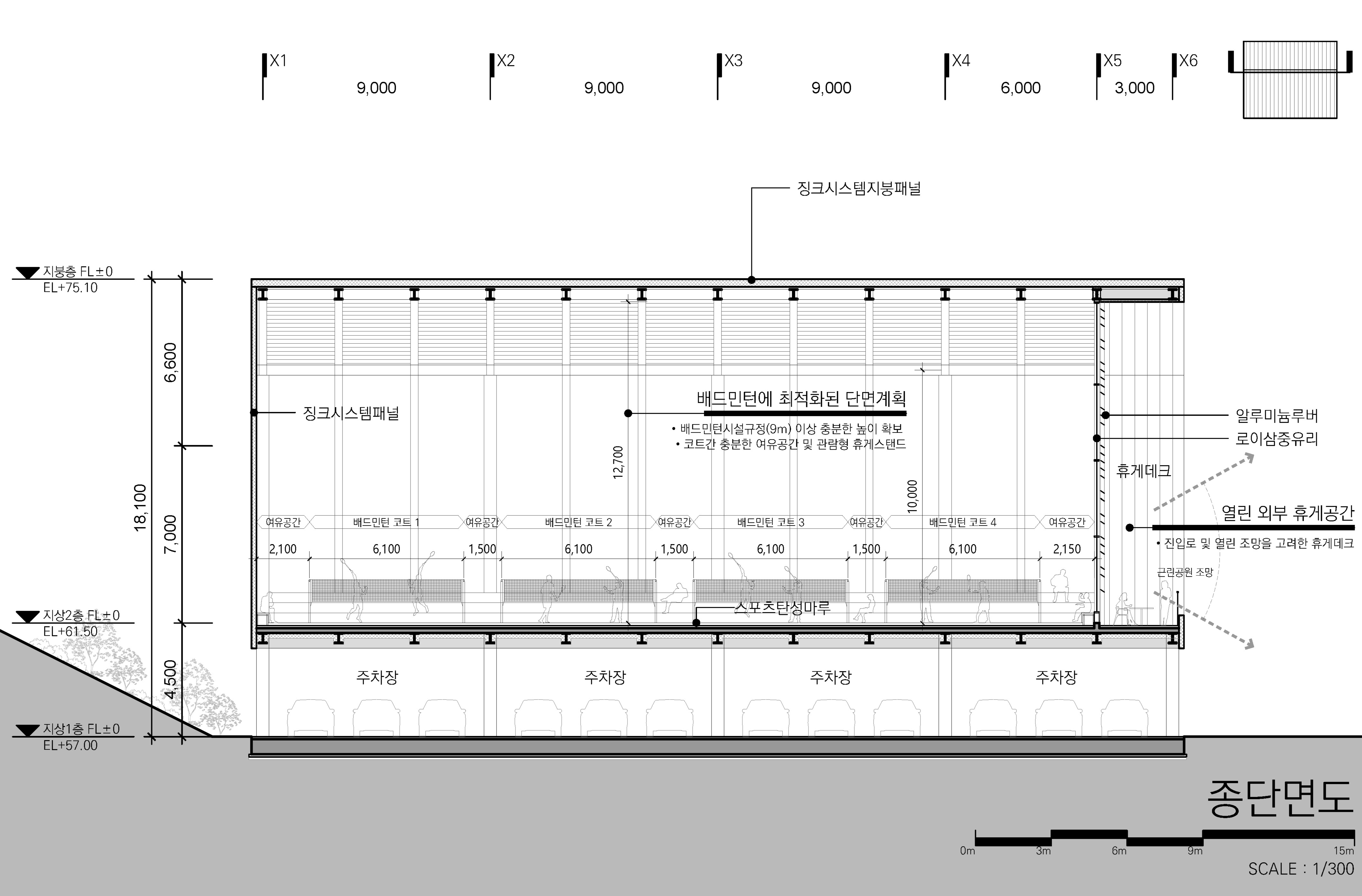
하이클리어는 배드민턴에서 상대편 코트 끝으로 높고 멀리 셔틀콕을 보내 불리한 수비 상황을 깨끗히 정리하는 기술이다.
호원 실내 배드민턴장이 들어설 근린공원내 주차장 부지는 좁은 면적과 주변의 경사, 기존 주자장의 최대 유지 등 해결되어야 할 이슈가 많은 어려운 장소다.
지형훼손을 최소화 하고, 최대의 주차대수를 확보하며, 배드민턴에 최적화된 공간계획으로 의정부 호원동의 ‘하이-클리어’ 같은 배드민턴장을 제안한다.














High-clear (호원 실내배드민턴장 설계공모안)
대지위치: 경기도 의정부시 호원동
대지면적: 31,000㎡
지역지구: 자연녹지지역, 공원
용도: 운동시설 (배드민턴장)
규모: 지상2층
구조: 철골구조
건축면적: 1,089.73㎡ (사업범위)
건폐율: 19.35%
연면적: 1,067.44㎡ (사업범위)
용적률: 20.31%
주차대수: 40대 (사업범위)
외부마감: 징크시스템패널, 로이삼중유리, 합성목재패널, 알루미늄루버
설계: Studio22 (이동우)

