



39년간 구룡골의 정자나무처럼 어르신들의 삶과 쉼을 담아 온 구룡경로당에 새로운 아홉 가지 풍경을 더한다.
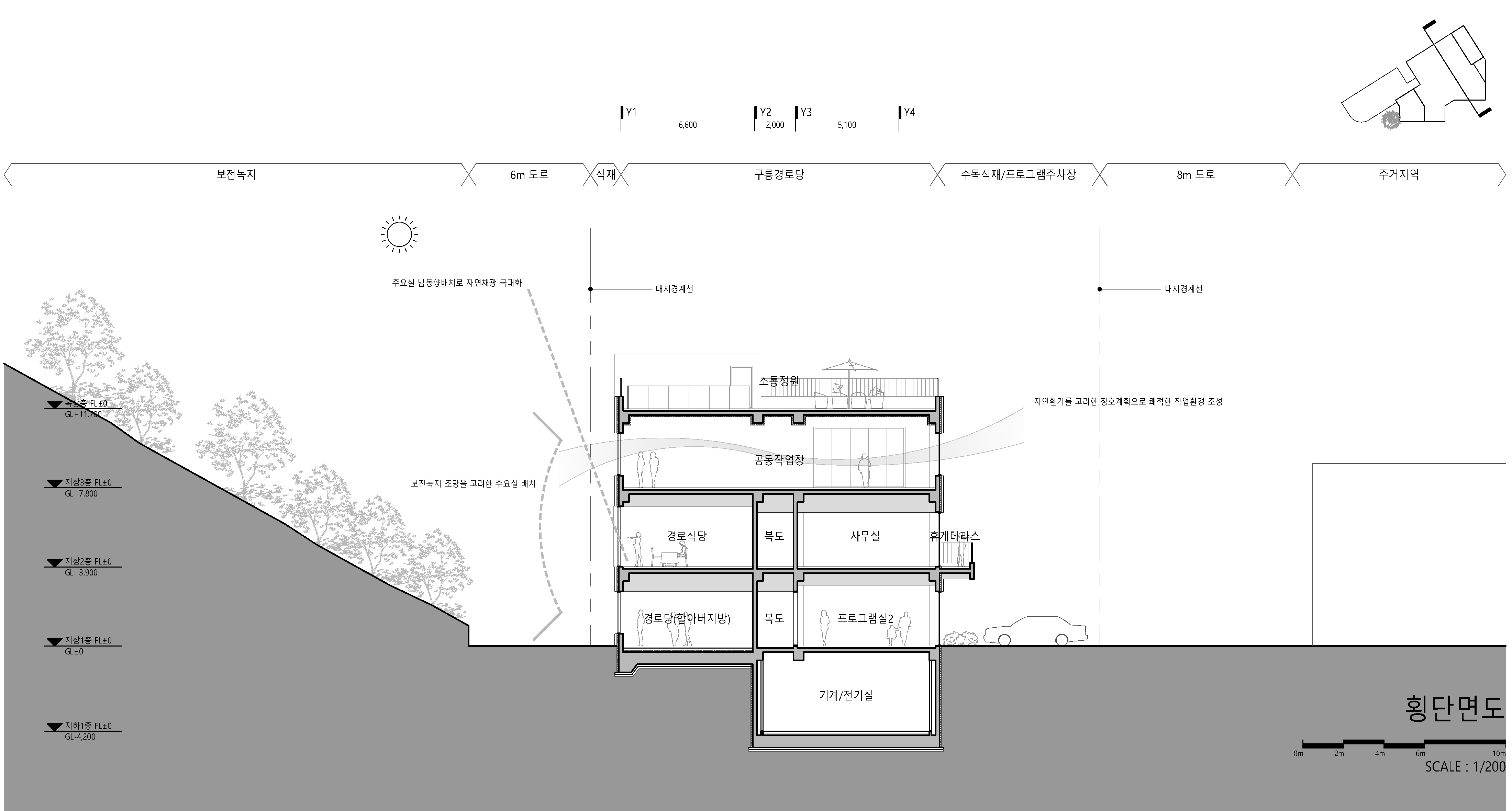
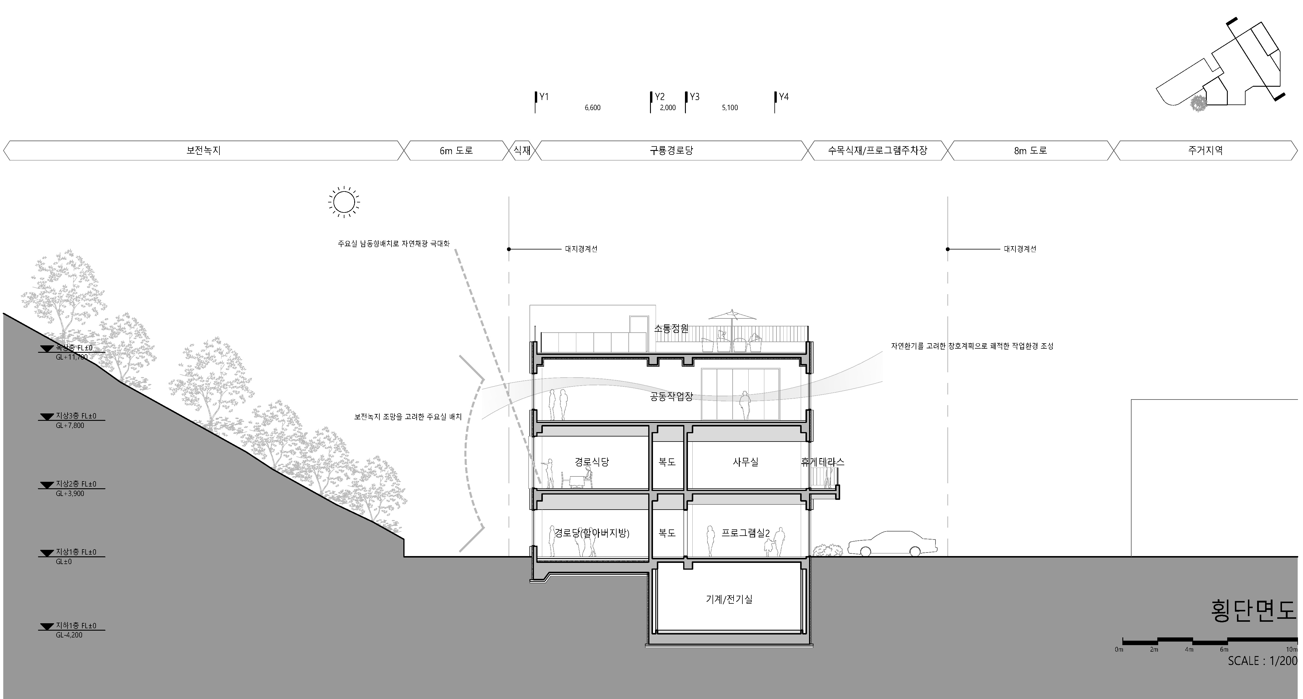
사계절의 변화를 느끼는 보전녹지.
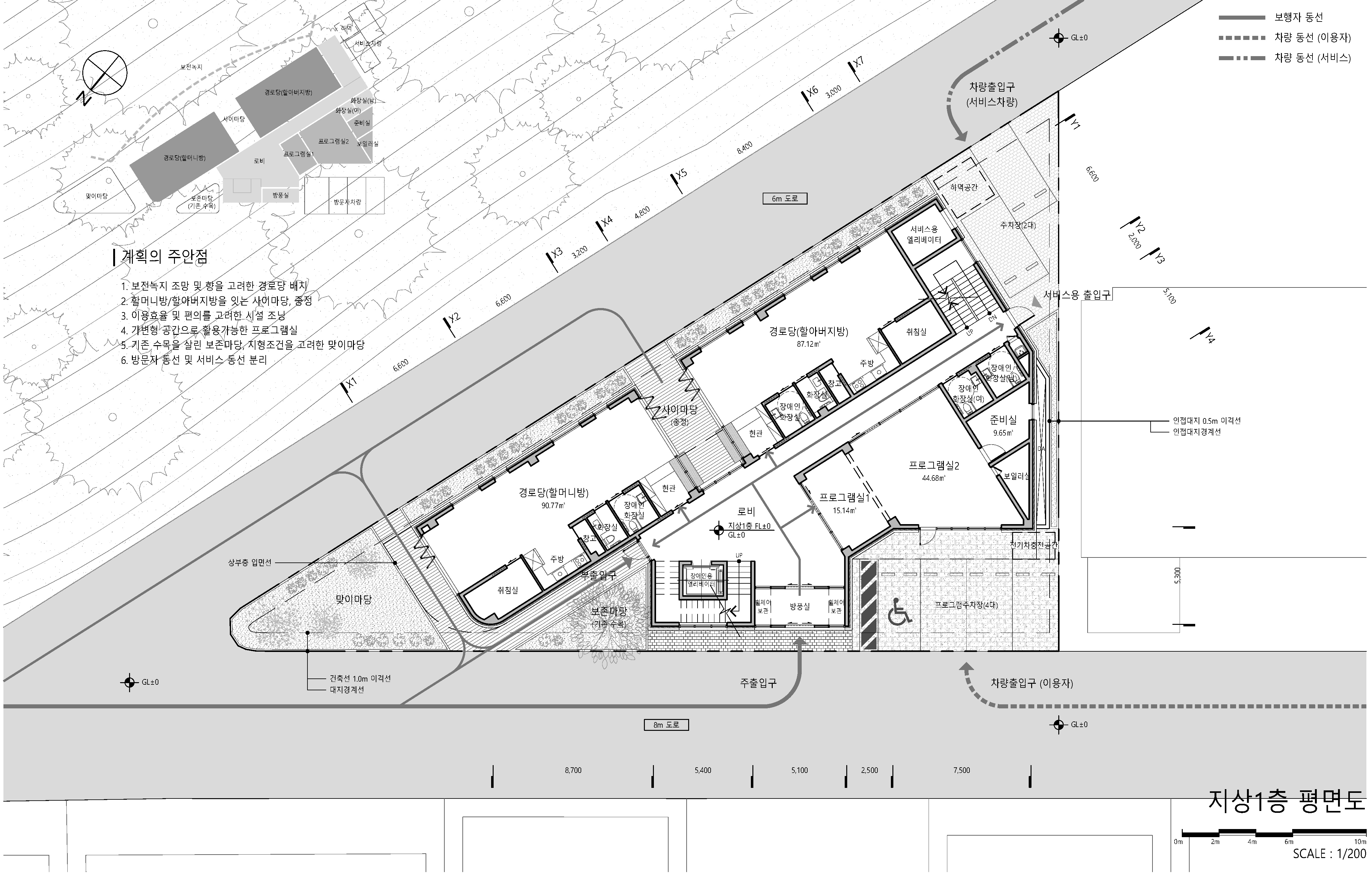
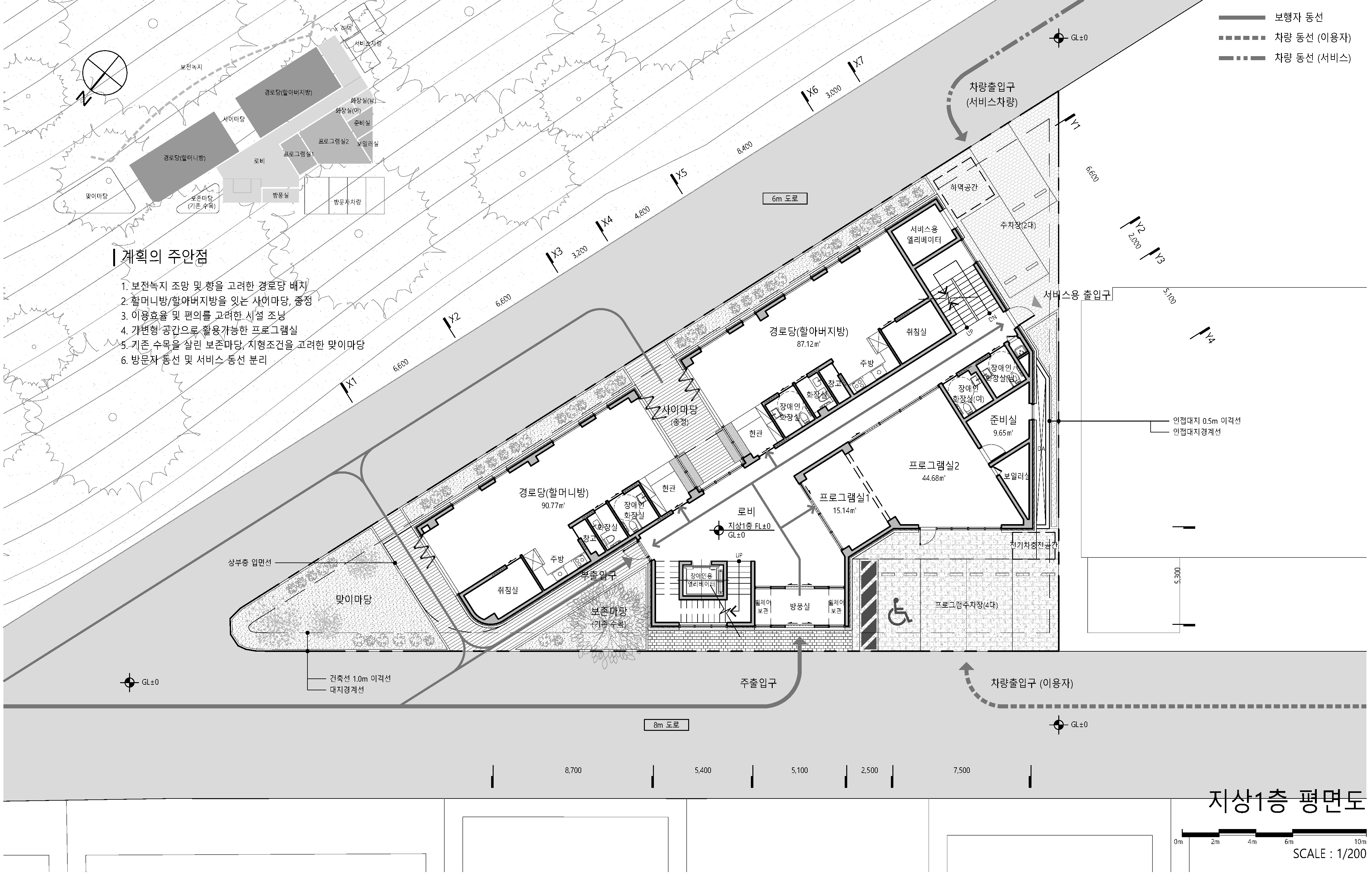
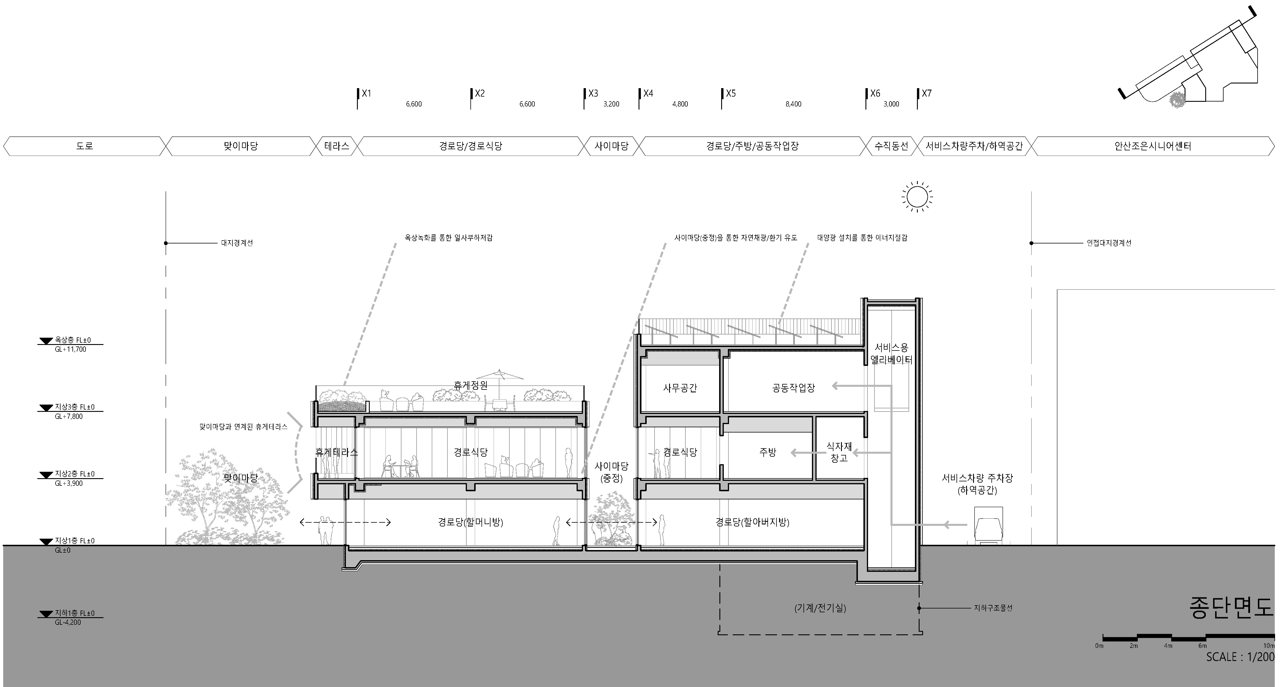
어르신들을 따뜻하게 반겨주는 맞이마당.
기존 수목을 활용한 보존마당.
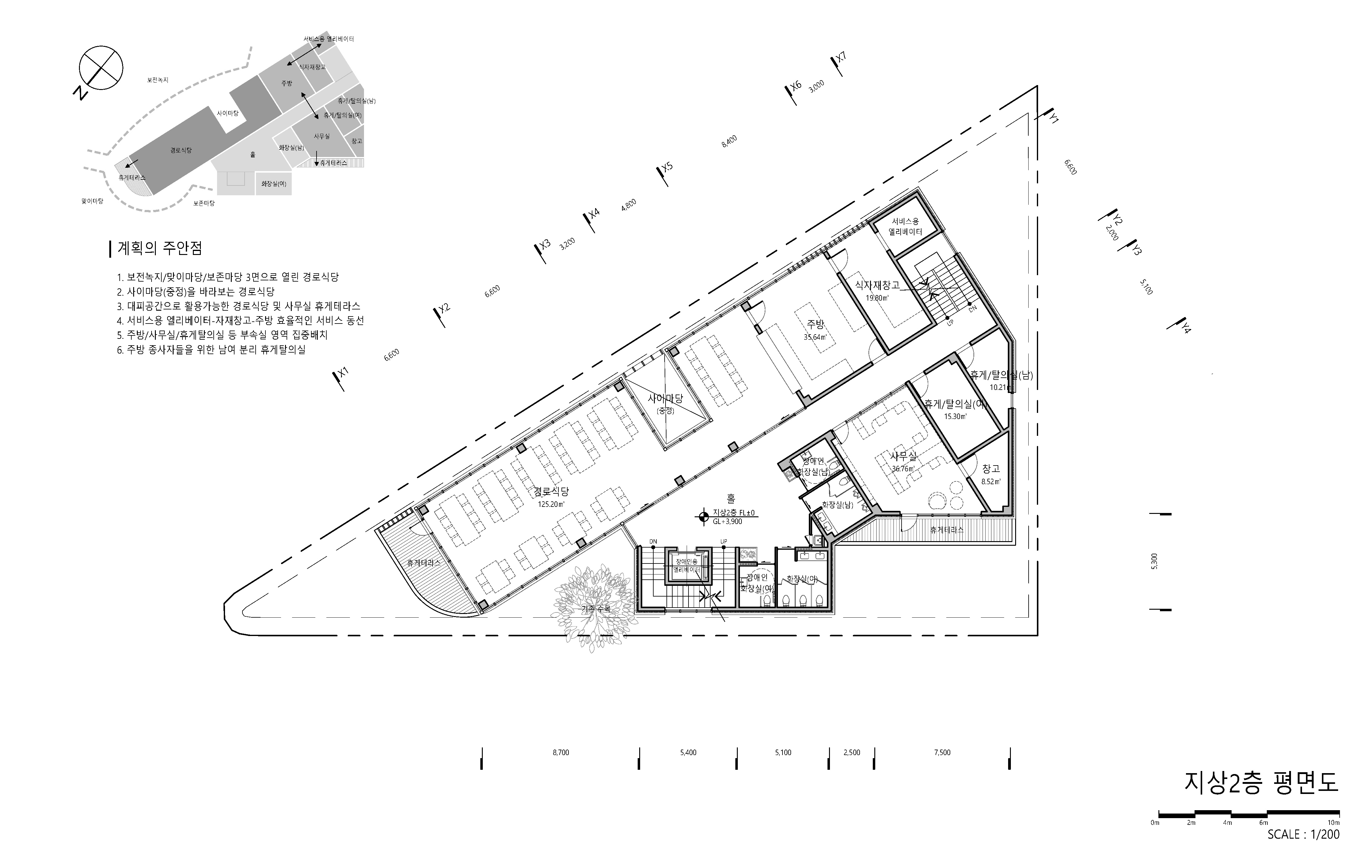
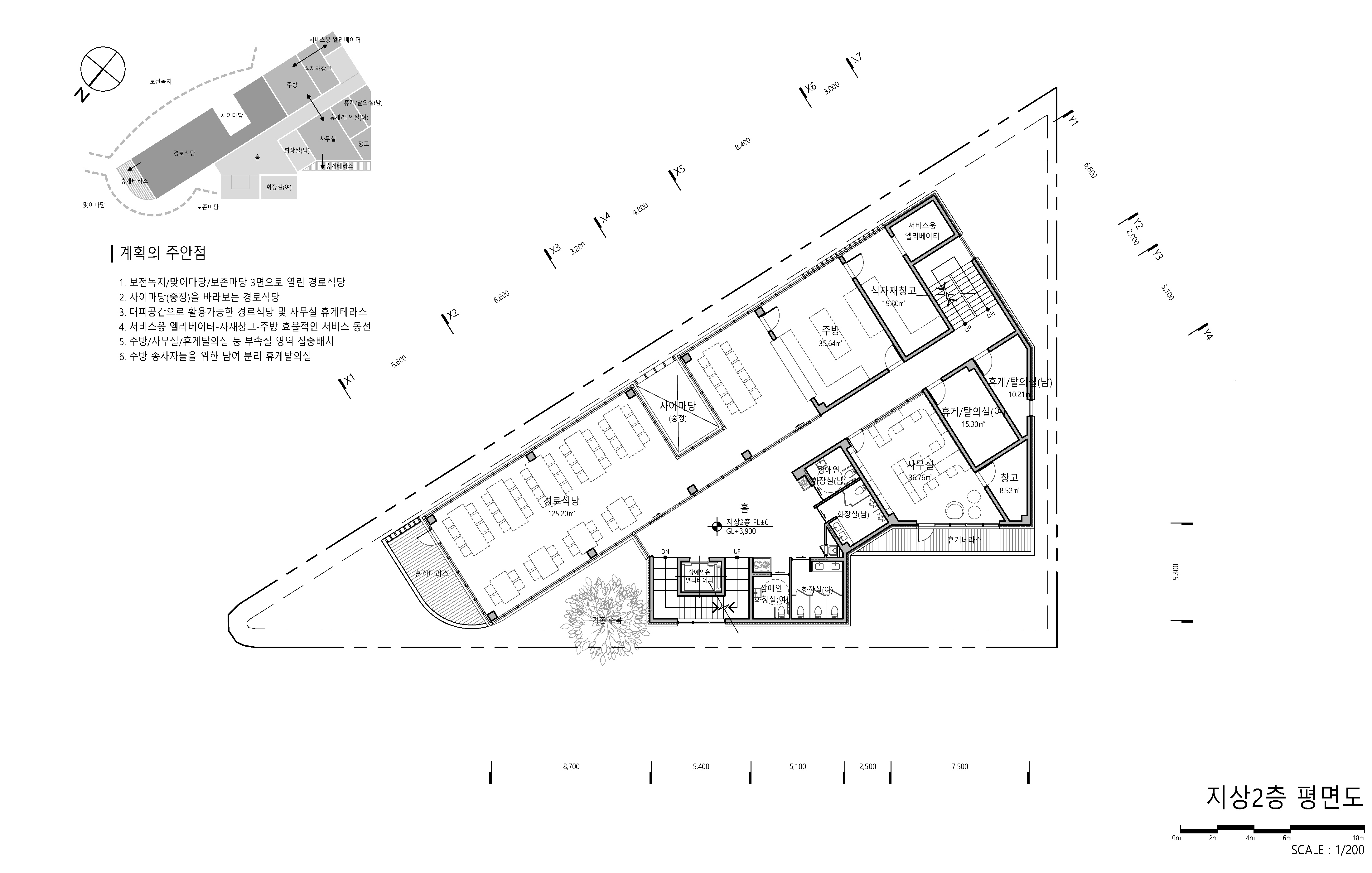
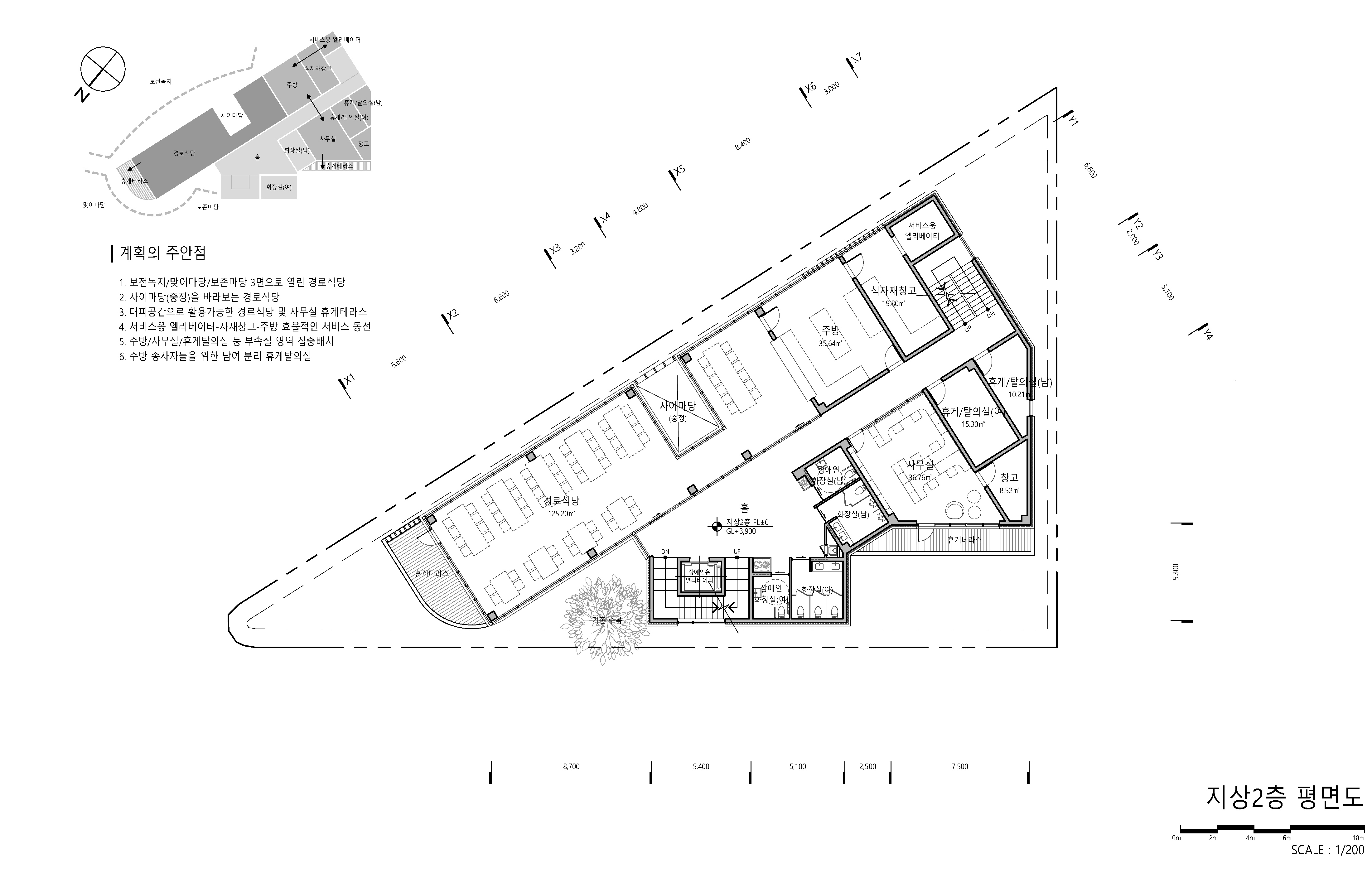
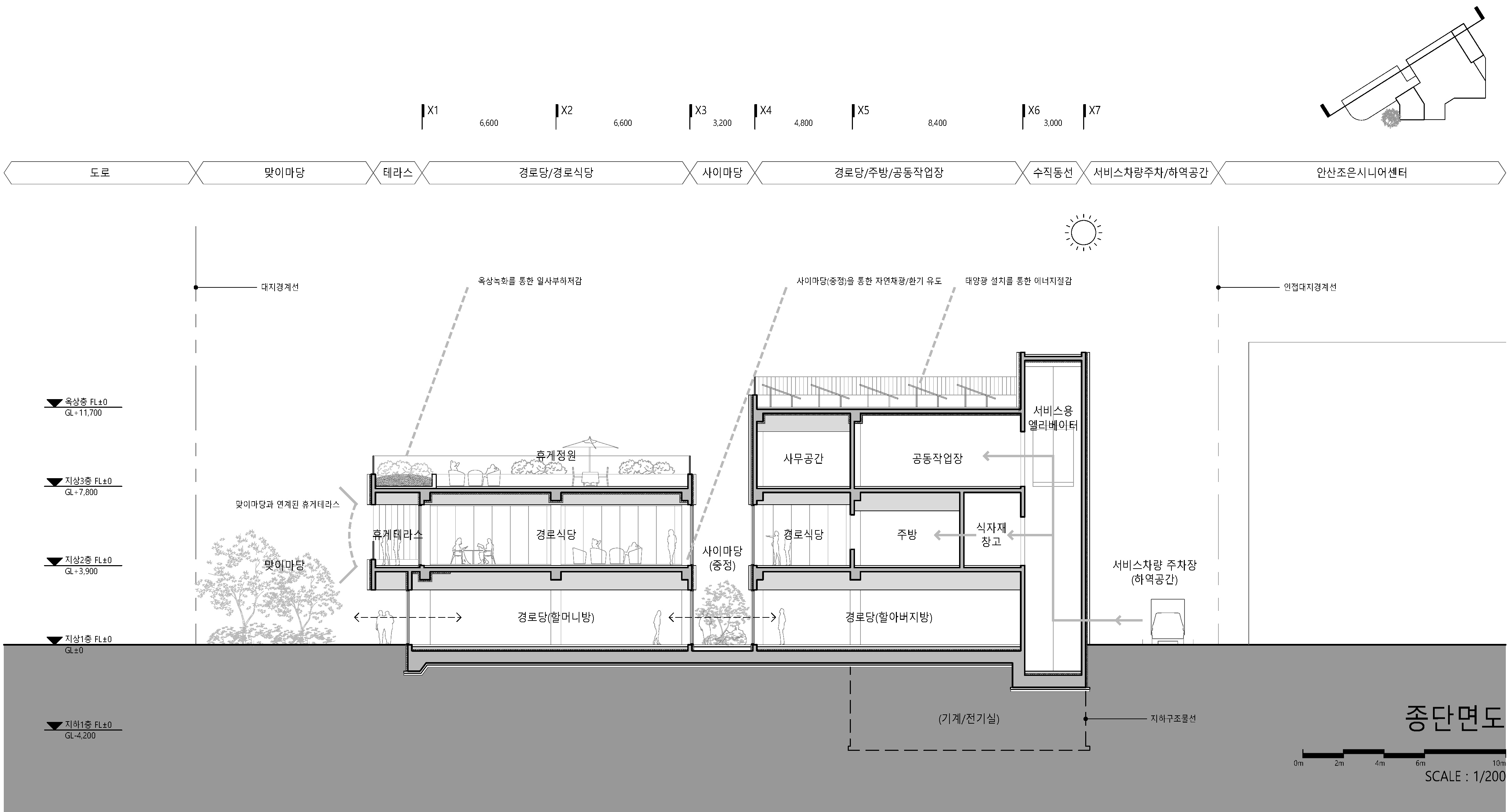
할머니방과 할아버지방을 잇는 중정, 사이마당.
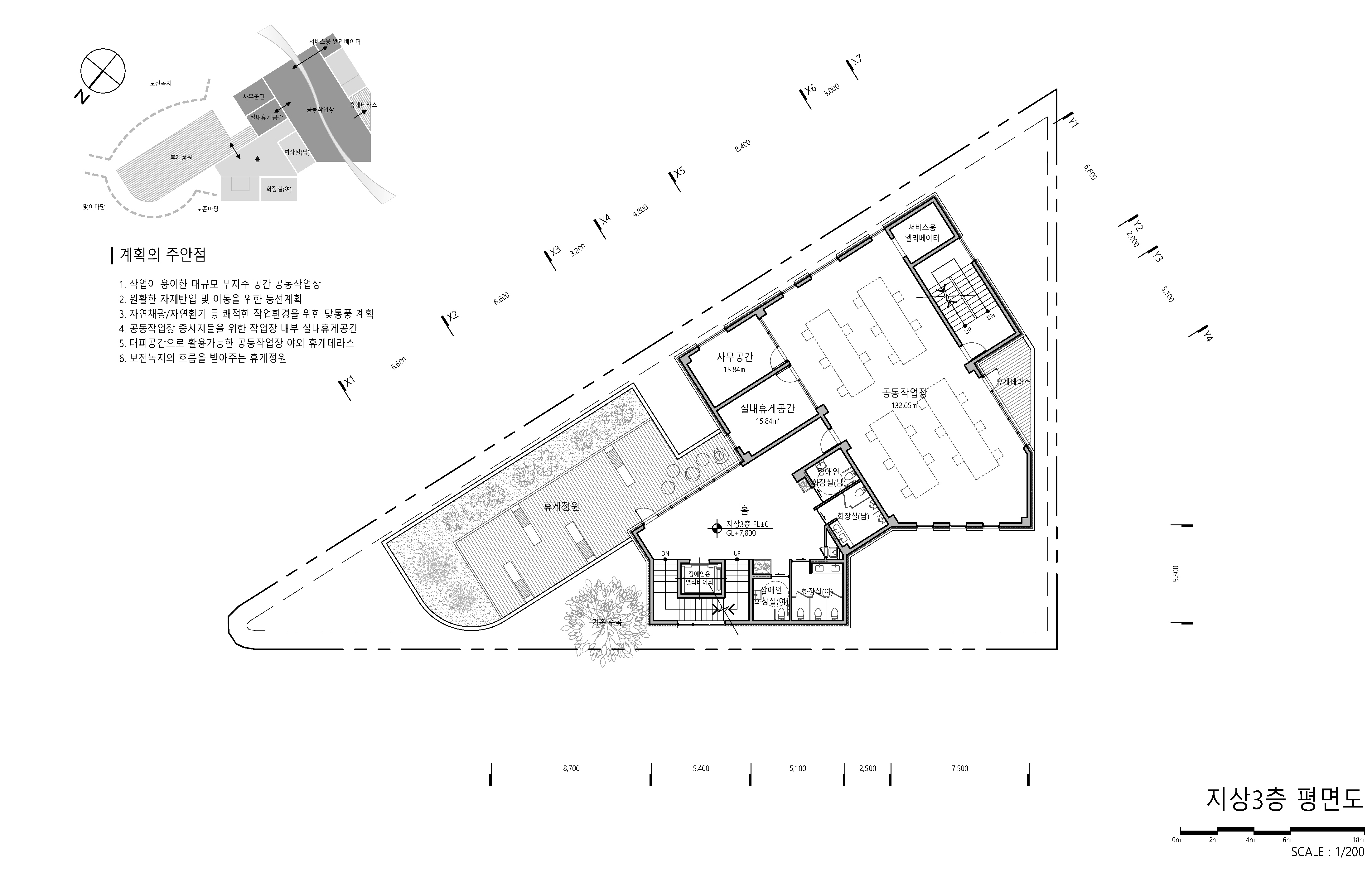
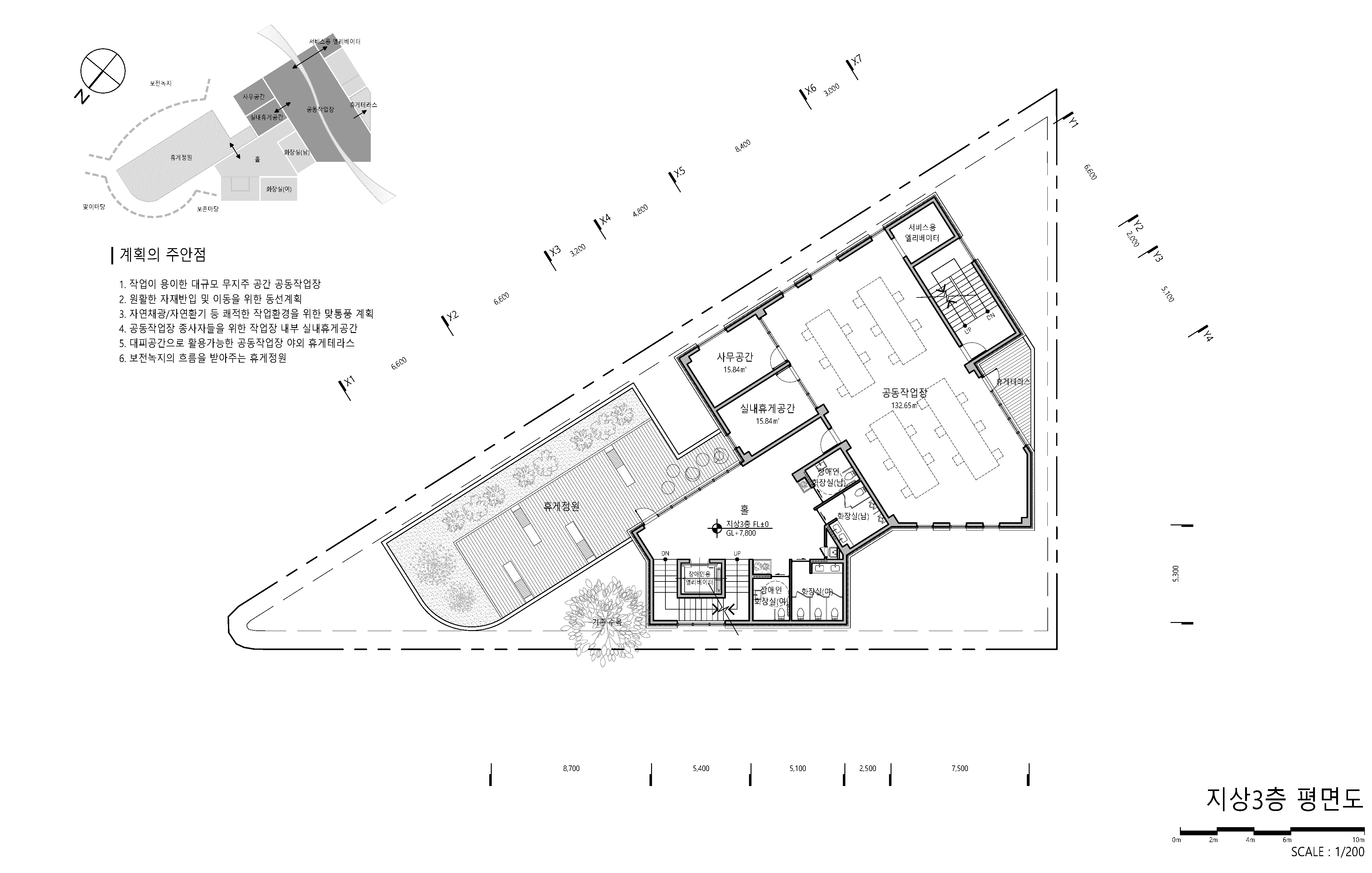
외부 행사와 연계 가능한 프로그램 주차장.
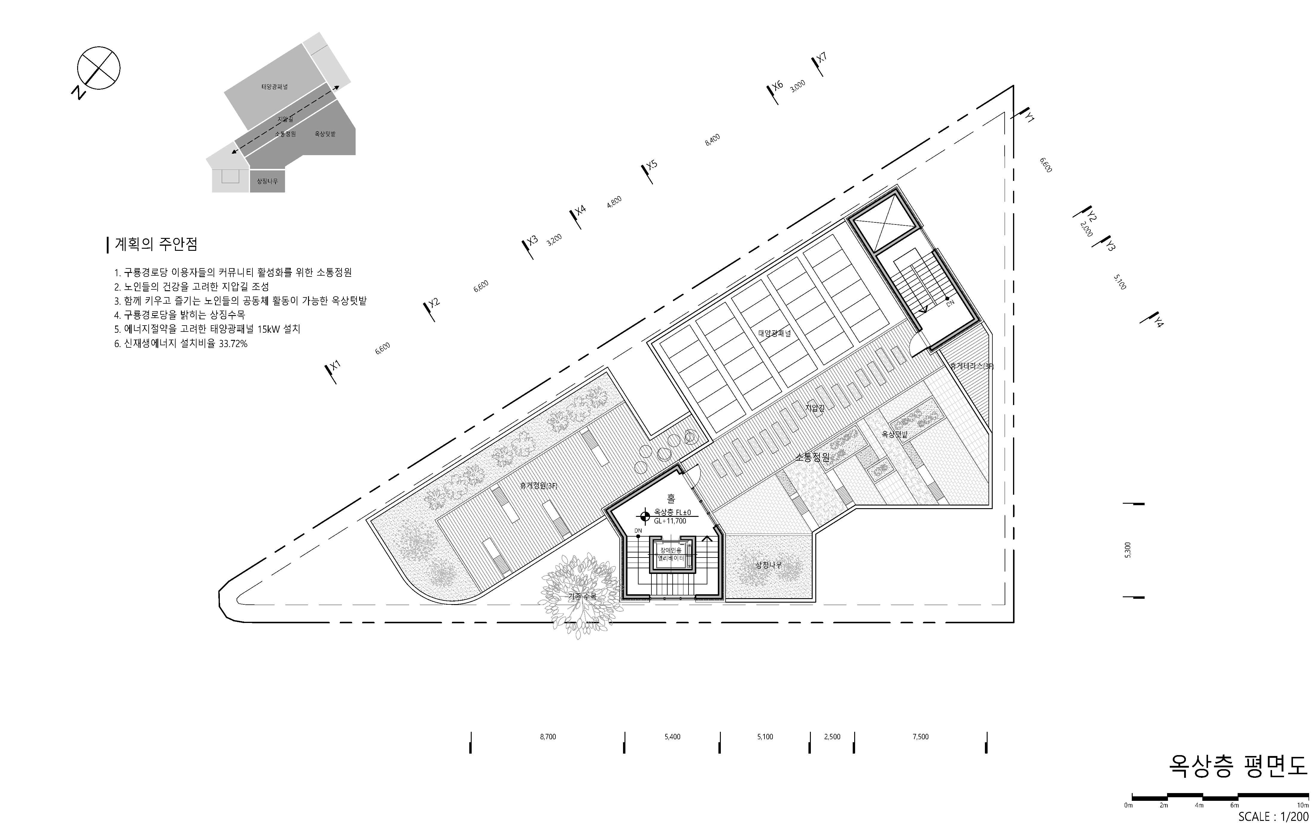
자연과 함께 숨쉬는 휴게정원.
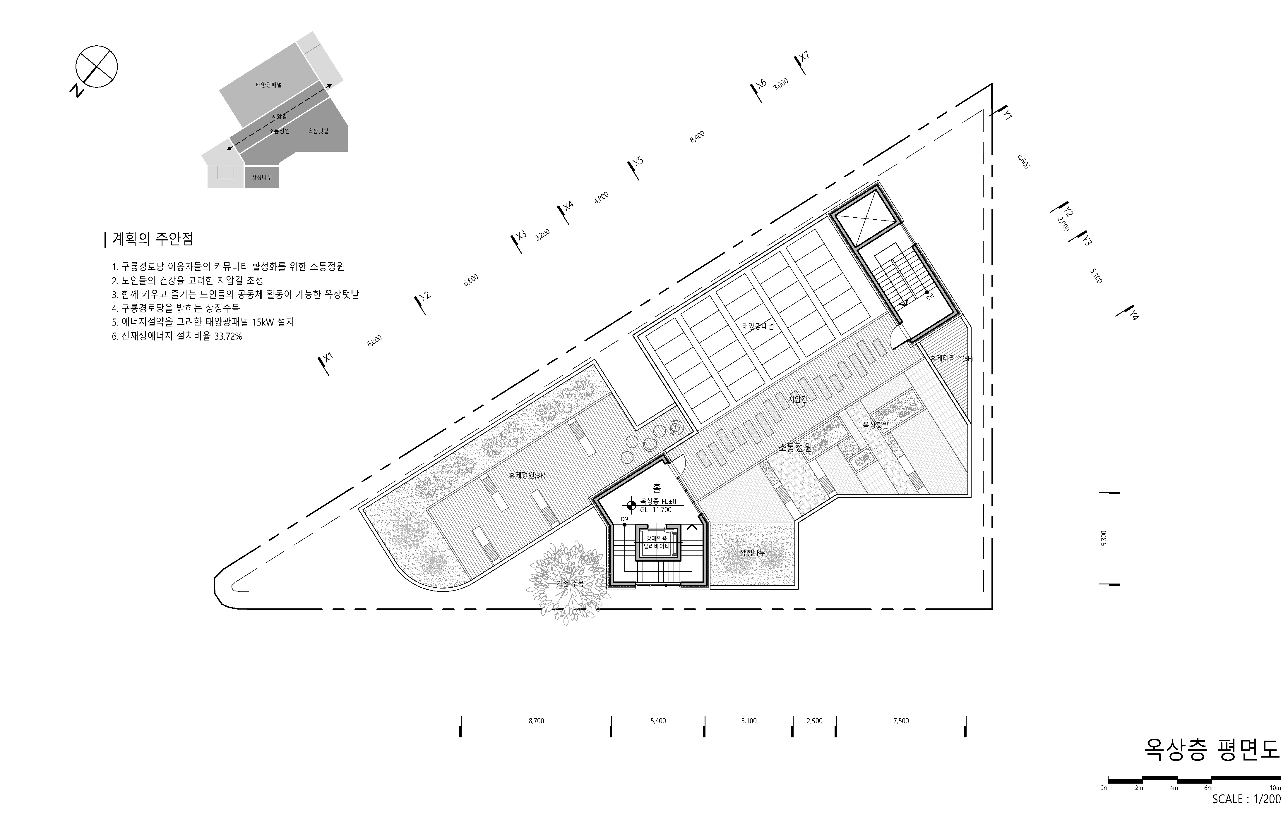
어르신들의 건강한 삶을 위한 지압길.
함께 키우고 즐기는 공동체 공간, 옥상텃밭.
구룡경로당을 밝히는 상징나무.
도심 속 아홉 가지 풍경을 향유하며 어르신들의 오랜 이야기를 계속 전할 수 있는 '구경재'가 되길 기대한다.










구경재 (九景齋 / 구룡경로당 설계공모안)
대지위치: 경기도 안산시 상록구 일동
대지면적: 728.60㎡
지역지구: 도시지역, 제2종일반주거지역, 시가지경관지구
용도: 노유자시설 (노인복지시설)
규모: 지하1층, 지상3층
구조: 철근콘크리트구조
건축면적: 414.27㎡
건폐율: 56.86%
연면적: 1,163.32㎡
용적률: 145.09%
주차대수: 6대
외부마감: 점토벽돌, 송판무늬패널, 로이복층유리, 폴리카보네이트
설계: Studio22 (이동우, 서나영, 전가영)

