
Play-Scape 자연과 함께 즐기는 속리산국립공원의 새로운 풍경
속리산 지형에 순응하며 자리 잡은 생태탐방원은 자연 속에서 놀고 배우며 체험하는 새로운 풍경을 선사한다.
기존 구거를 활용한 입체적 외부공간은 학습·탐방공간과 유기적으로 연계되고,
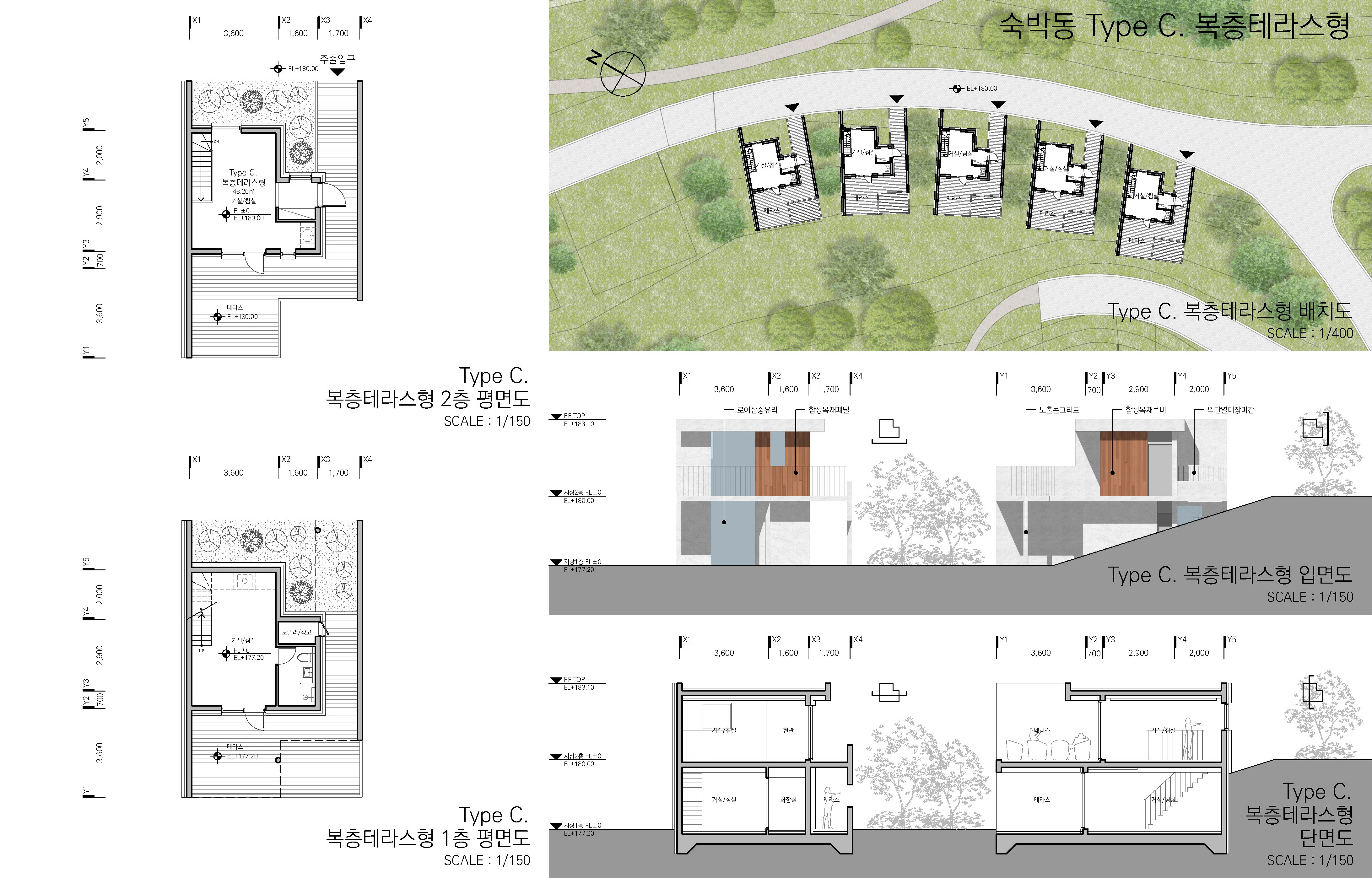
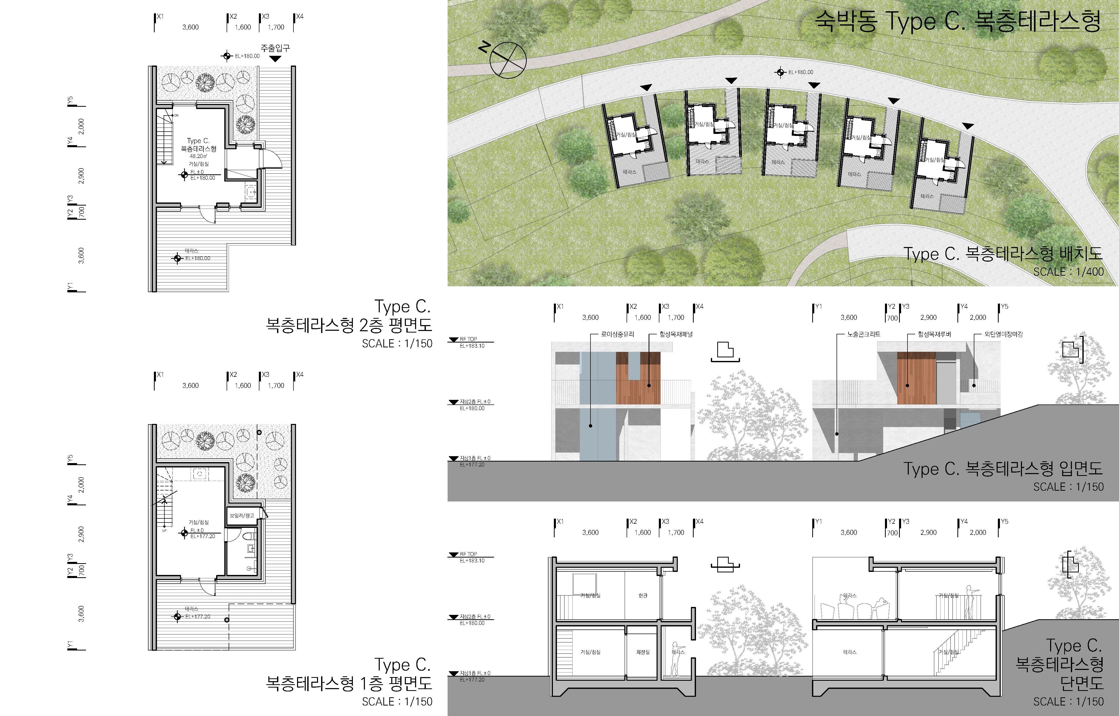
각기 다른 5가지 타입의 숙박동 유닛은 이용자들의 다양한 특성에 맞춰 색다른 휴식과 경험을 제공한다.










Play-Scape (속리산국립공원 생태탐방원 설계공모 입상작)
대지위치: 충청북도 괴산군 청천면 화양리
대지면적: 29,500.00㎡
지역지구: 자연환경보전지역, 공원자연환경지구
용도: 관광휴게시설 (생태관광 기반시설)
규모: 지하1층, 지상2층
구조: 철근콘크리트구조
건축면적: 2,054.44㎡
건폐율: 6.96%
연면적: 2,949.11㎡
용적률: 6.78%
주차대수: 40대
외부마감: 합성목재패널, 외단열미장마감, 로이삼중유리, 노출콘크리트
설계: Studio22 (이동우, 서나영, 전가영)

