







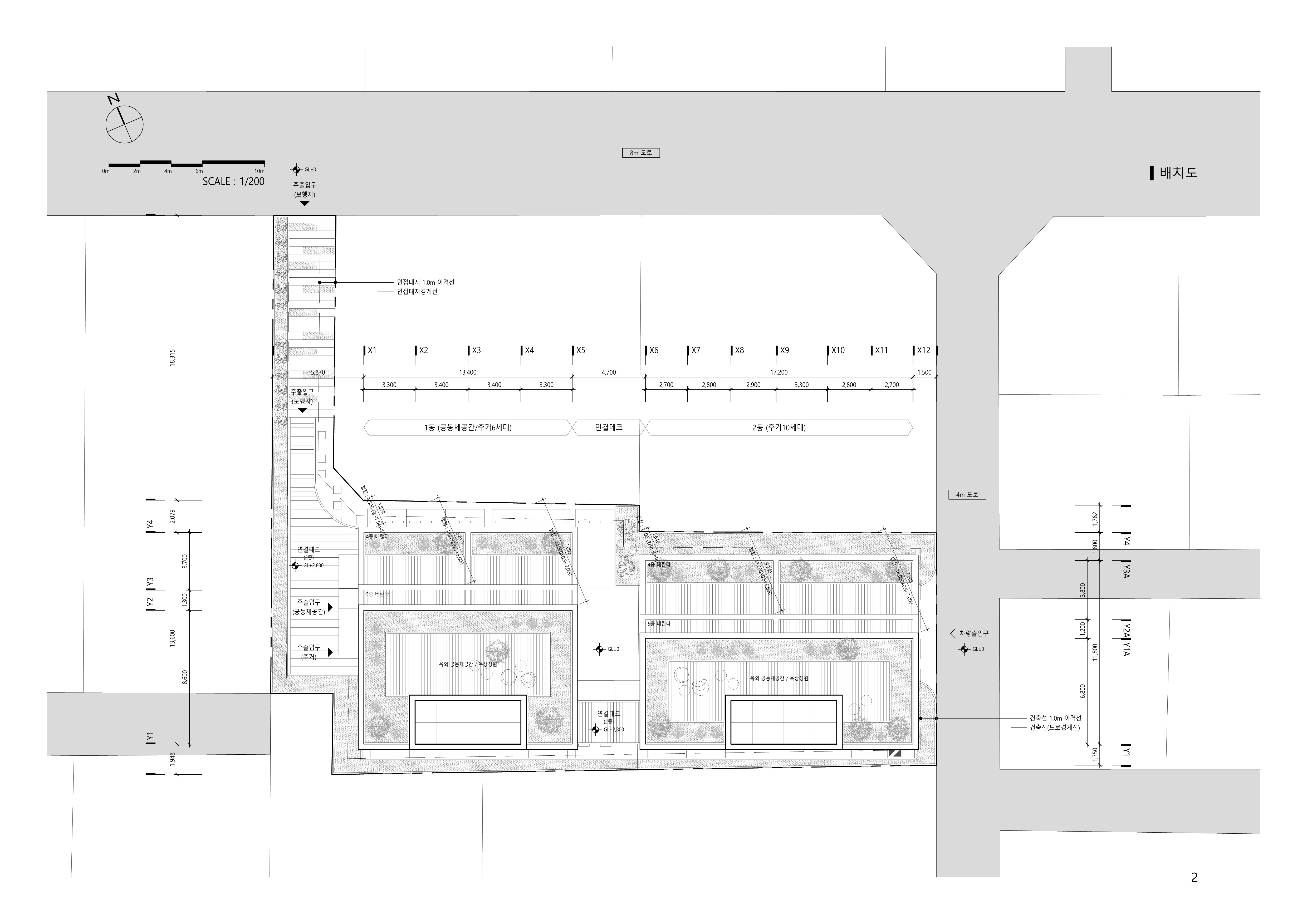
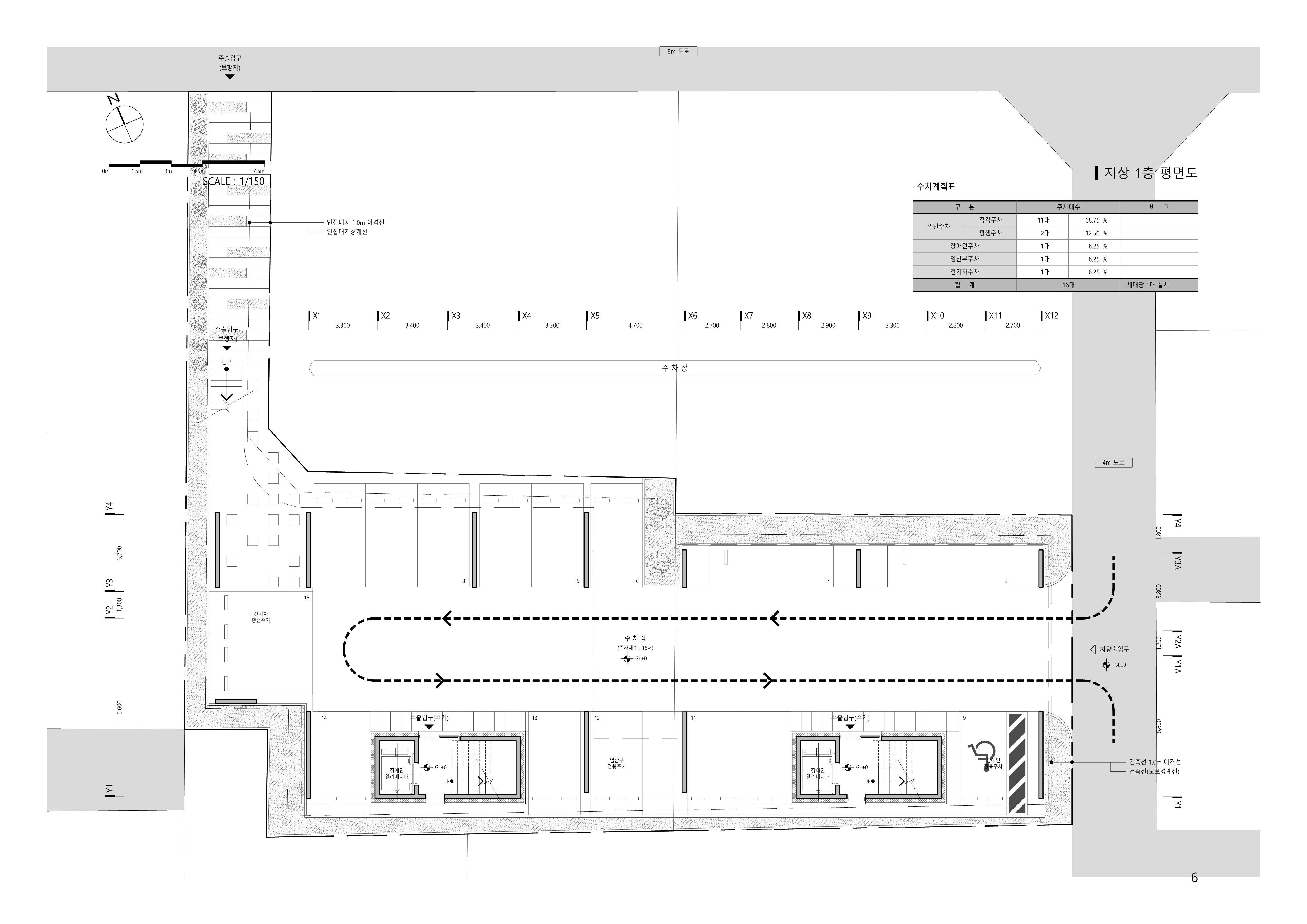
대지는 자양동 건대입구역 근처 로데오거리 인근으로 8m도로와 4m도로에 접해있다.
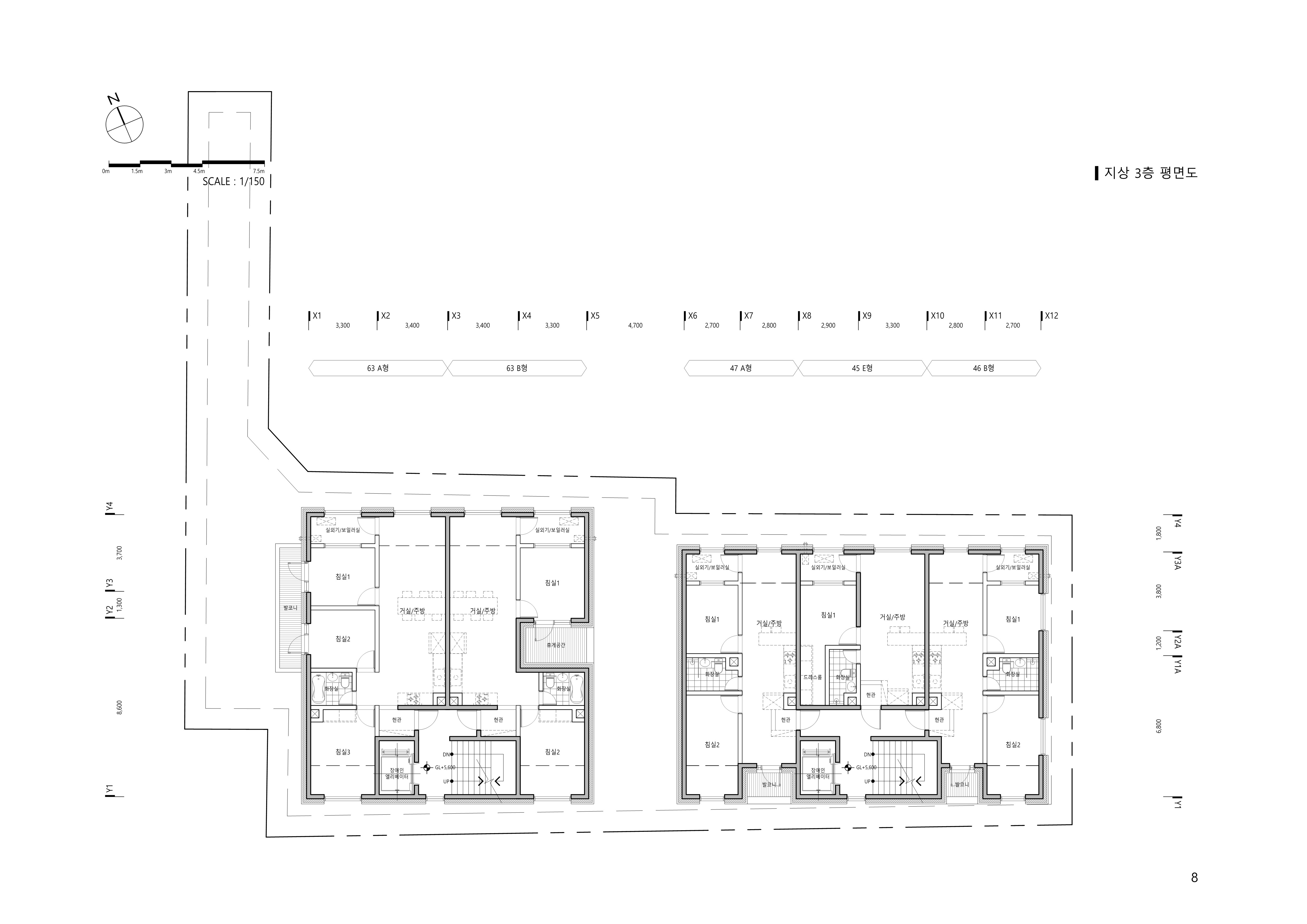
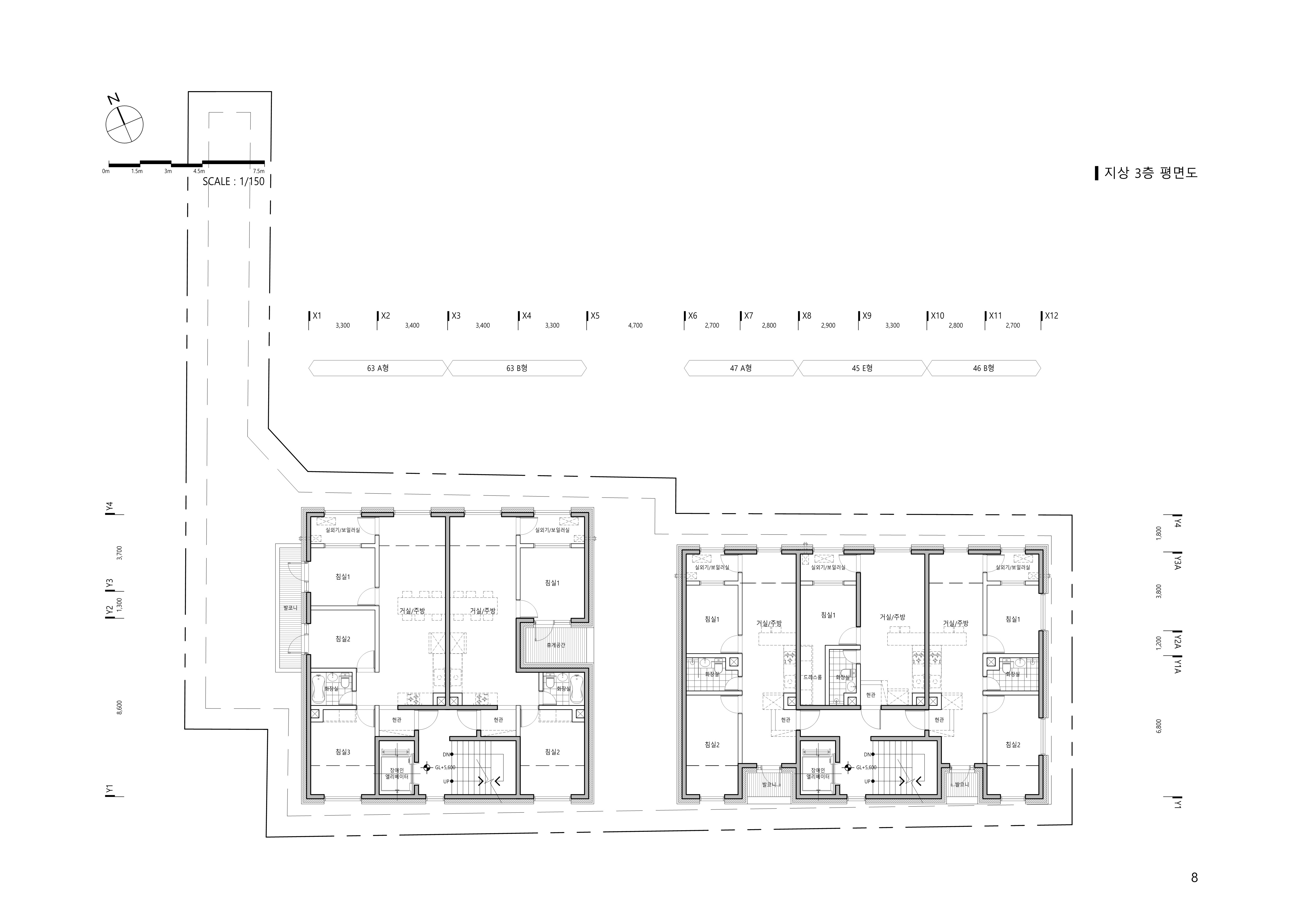
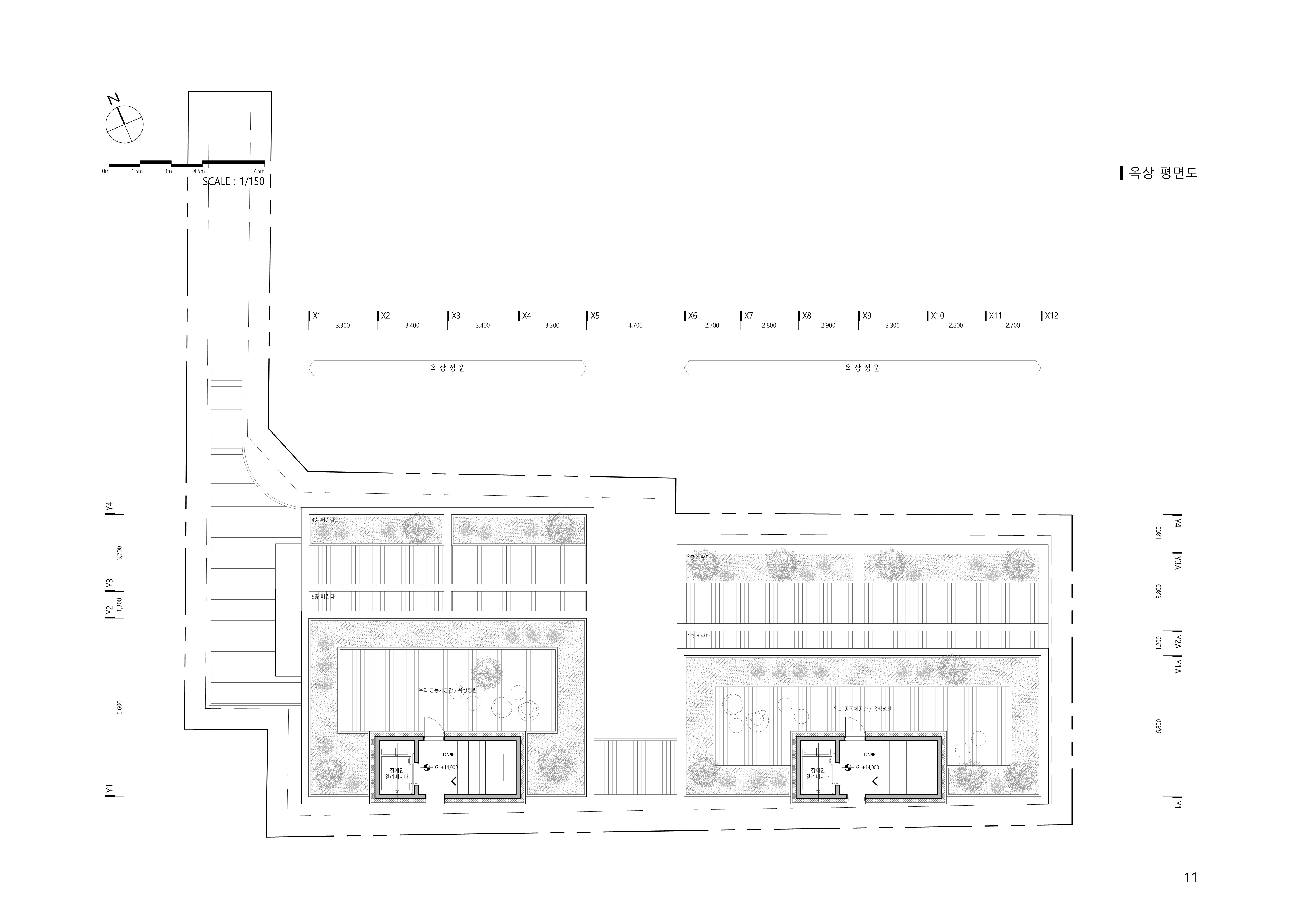
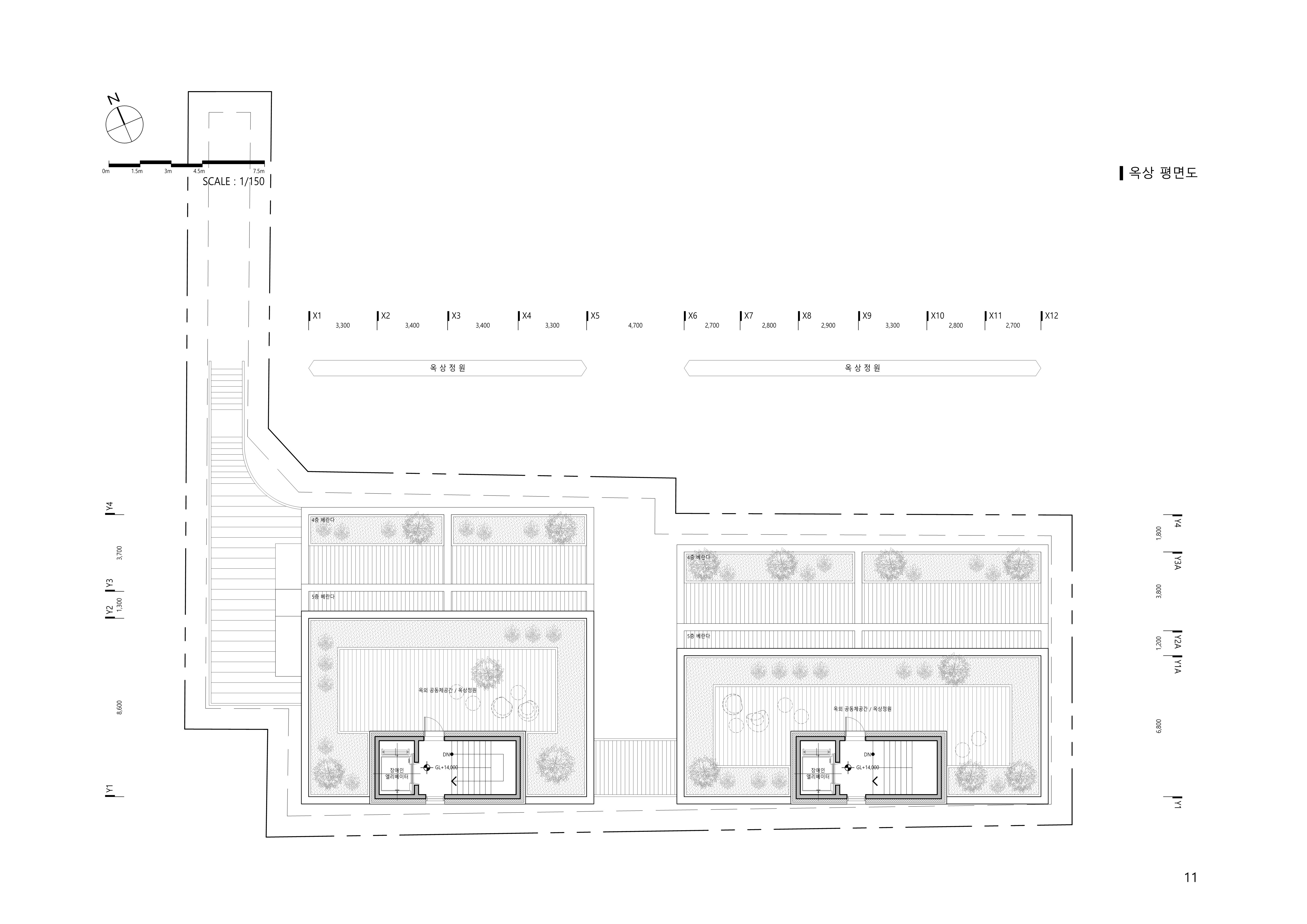
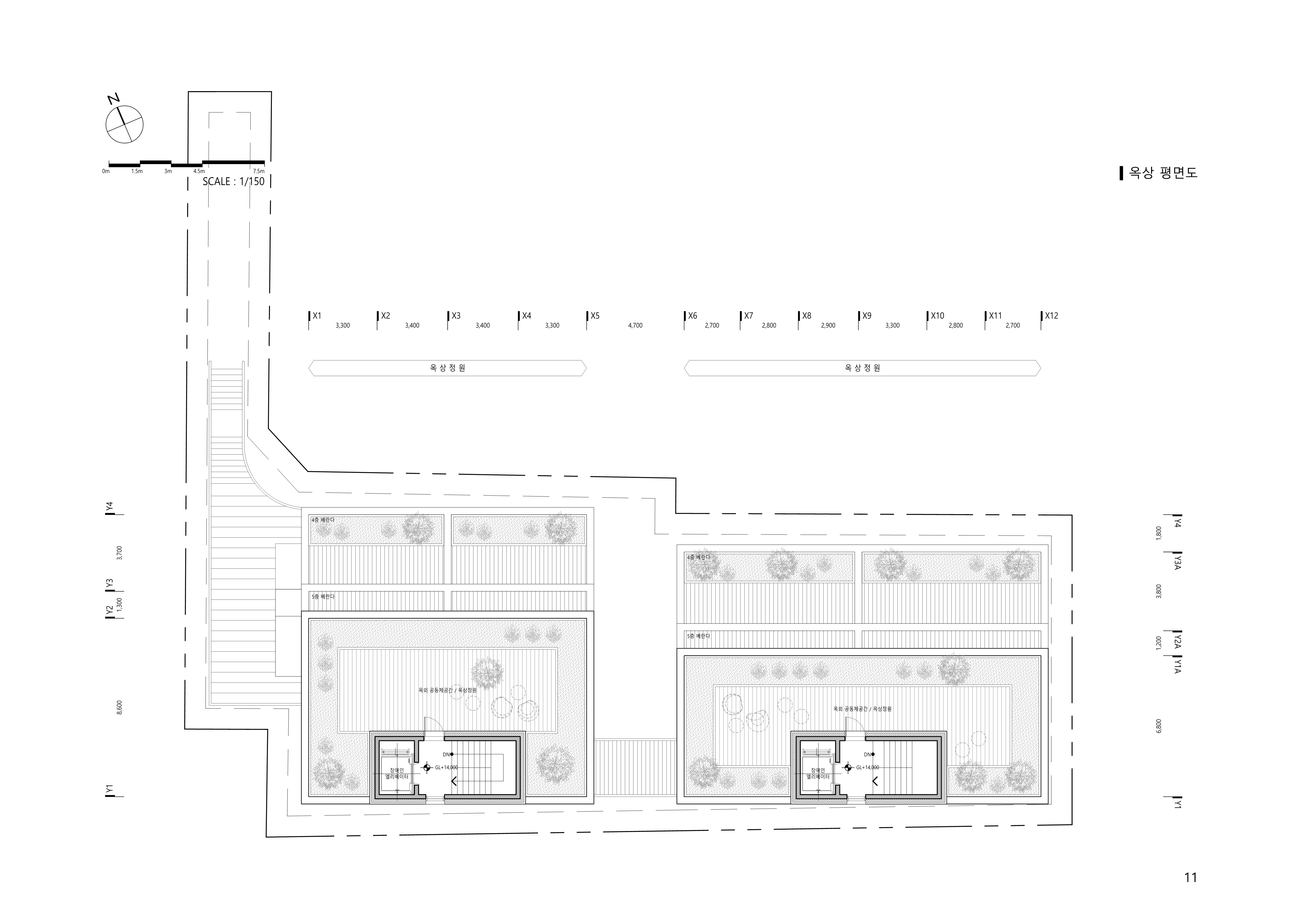
대지를 가장 효율적으로 쓸 수 있도록 2동의 볼륨을 구성하고, 이웃 간의 열린 교류 및 소통을 위한 공동체 공간과 유기적으로 연계되는 연결데크를 만들었다.
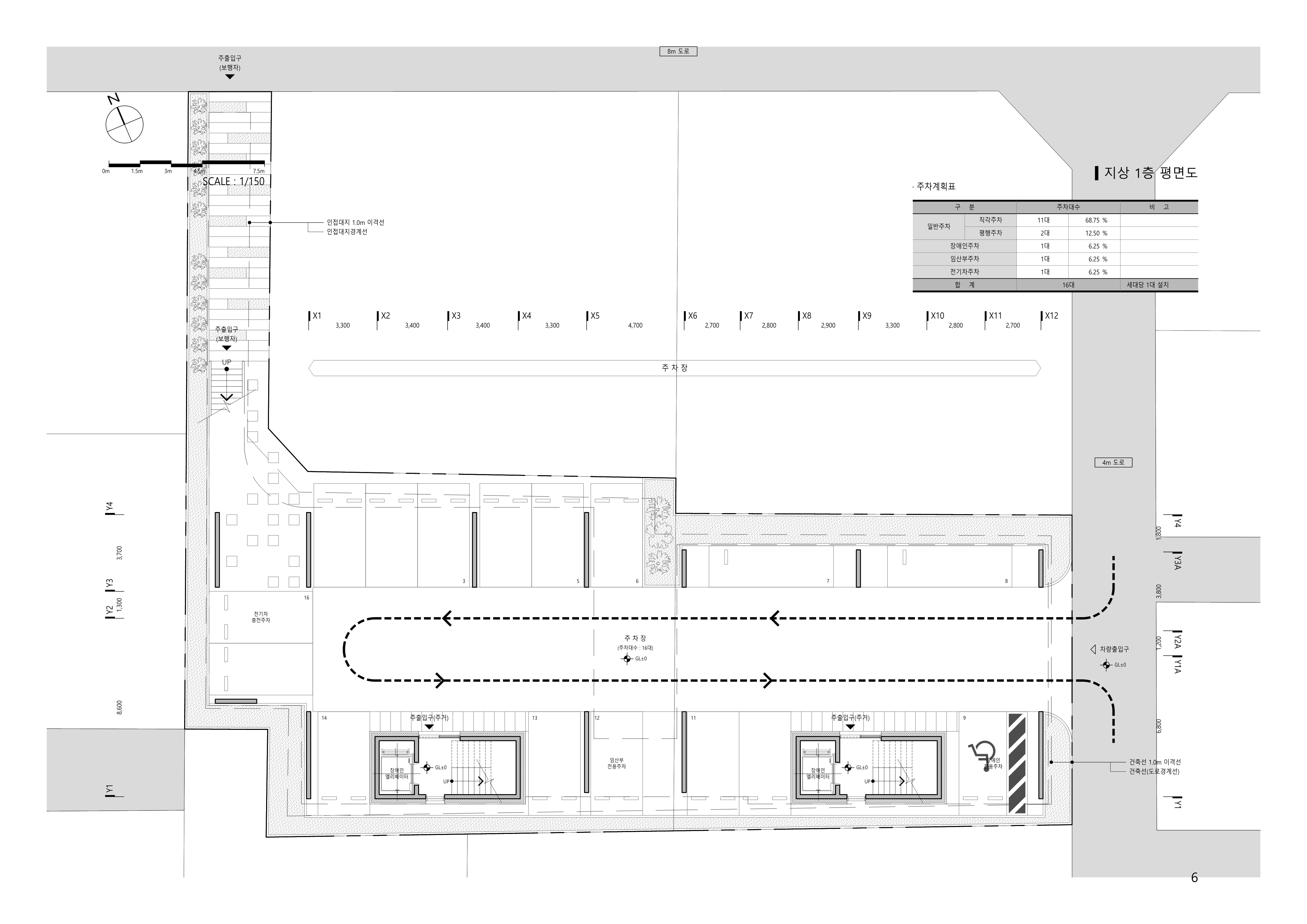
북측 8m도로에서 지상2층으로 연결되는 주출입 동선을 계획하여 보행자와 차량동선을 명확히 분리하고, 지상2층 공동체공간과 연결데크의 활용성을 높이도록 계획했다.
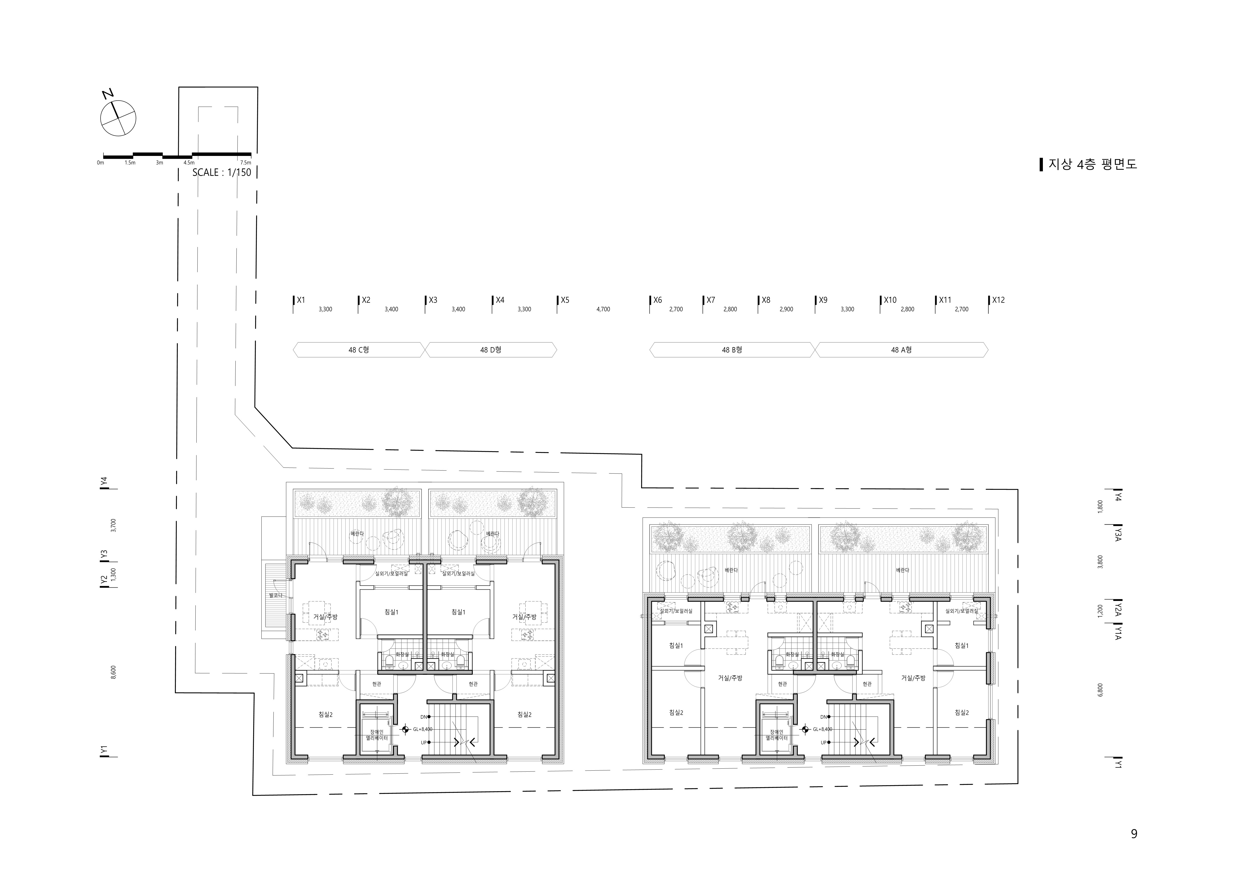
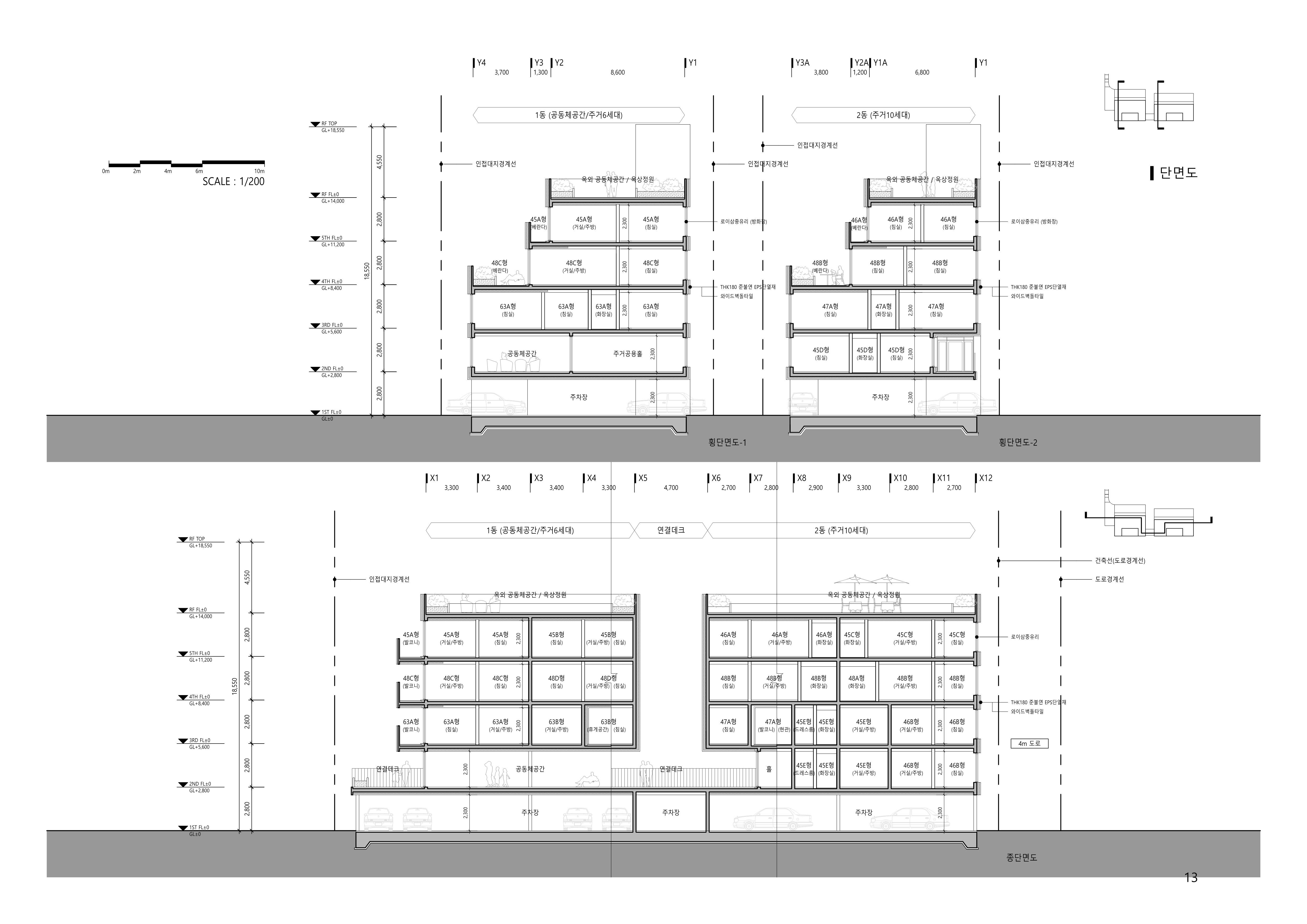
북측면의 일조사선으로 인한 후퇴 부분들은 테라스로 활용될 수 있도록 하고, 서측이나 동측면에서는 계단 형태의 볼륨이 직접적으로 드러나지 않도록 사선과 라운드 형태로 간결하게 처리하여, 정돈되고 일체감 있는 모습으로 보이길 바랐다.
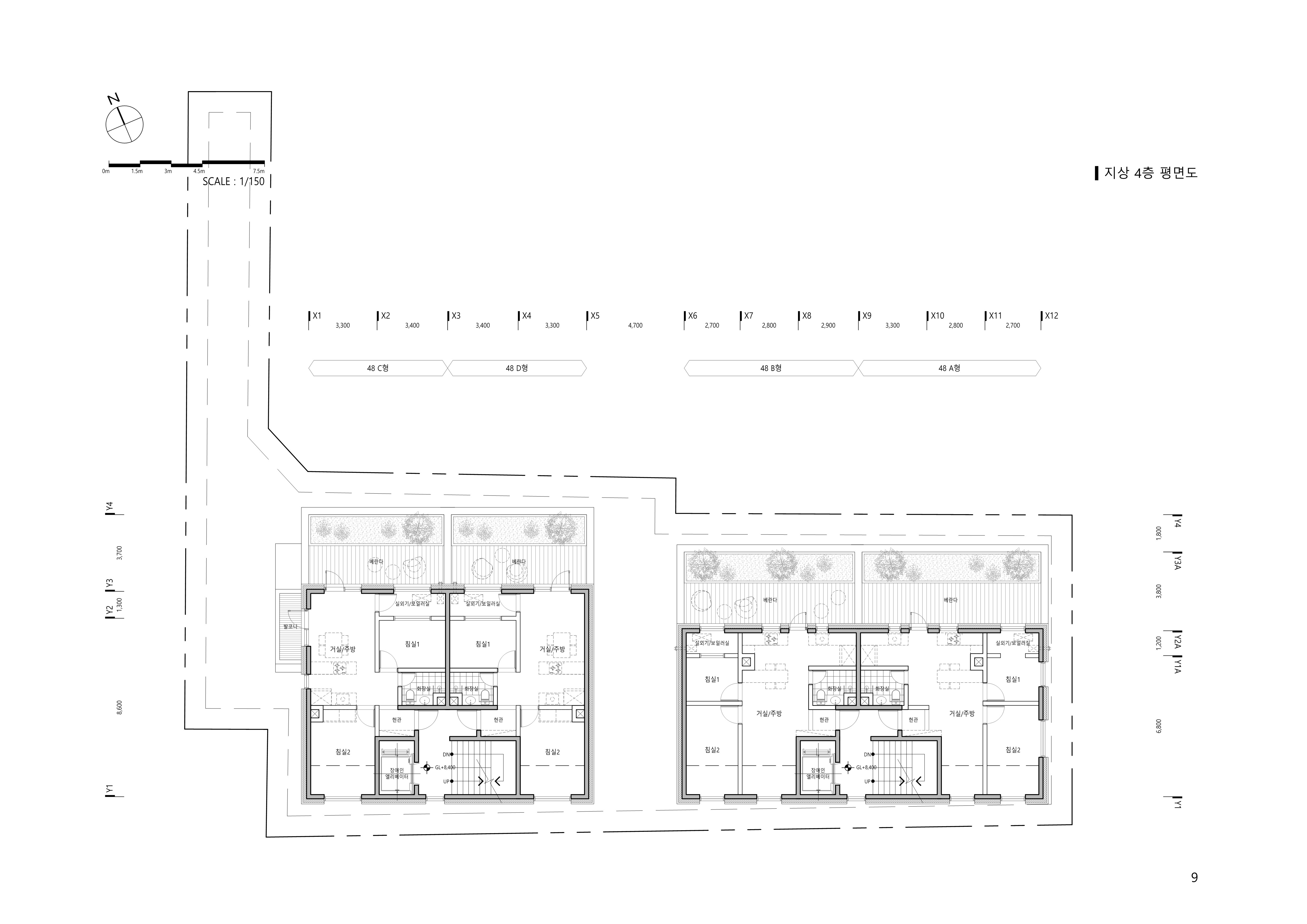
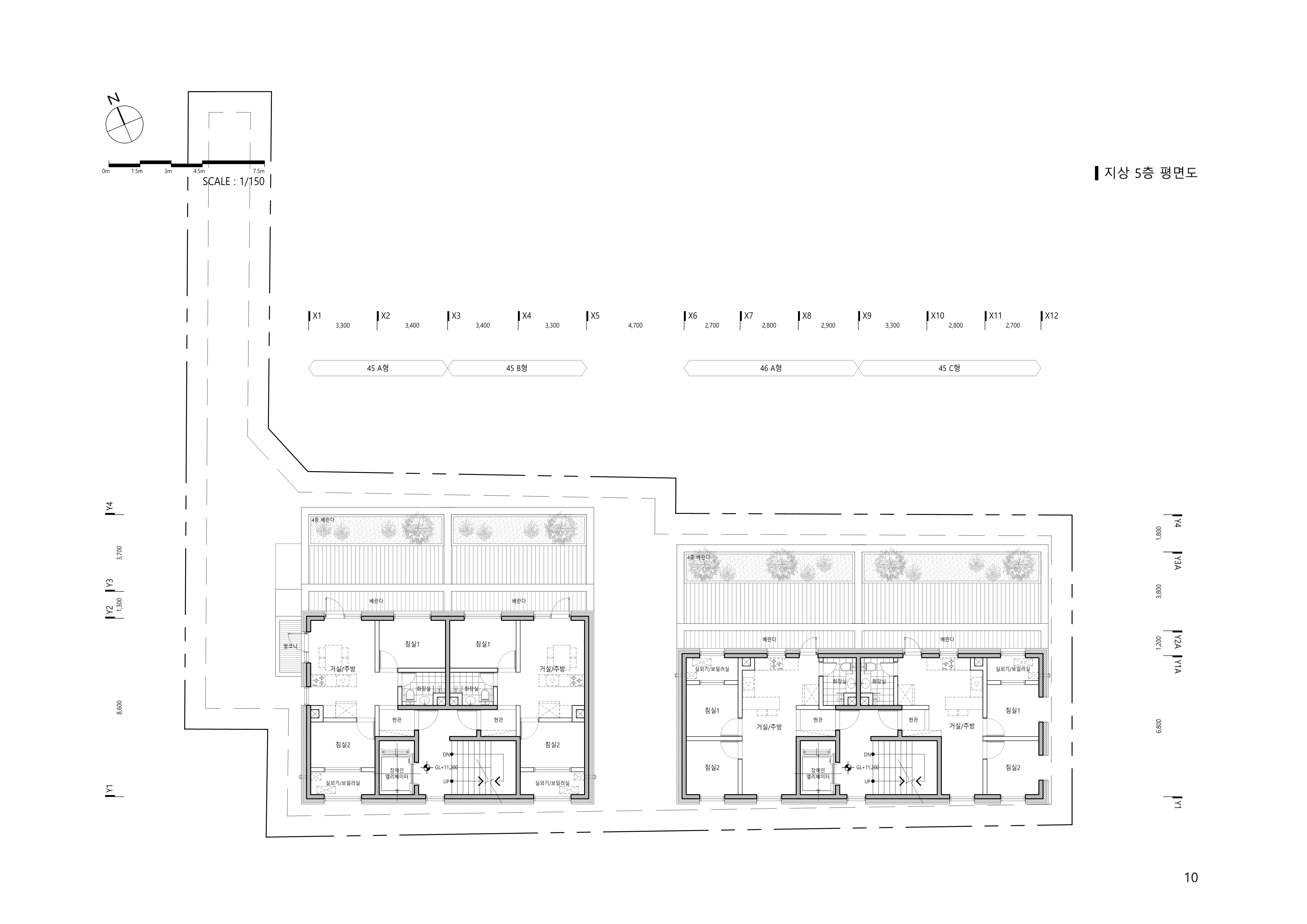
전세대 2BAY 및 3BAY 계획, 맞통풍을 고려한 자연환기 및 자연채광 계획, 합리적인 가구배치와 수납공간 계획, 발코니, 베란다, 휴게공간 등 외부 공간과 연계된 단위세대 계획을 고려했다.
이를 통해 공동체 해체로 인한 고립과 단절, 주거불안 등의 문제를 해결하고 다양한 청년 입주자의 라이프스타일에 대응하는 지속가능한 주거공간이 되길 기대한다.













자양동 공동주택 (자양동 주택건설사업 설계공모 입상작)
대지위치: 서울시 광진구 자양동
대지면적: 754.00㎡
지역지구: 도시지역, 2종일반주거지역
용도: 공동주택 (다세대주택)
규모: 지상5층
구조: 철근콘크리트구조
건축면적: 446.82㎡
건폐율: 59.26%
연면적: 1,124.54㎡
용적률: 149.14%
주차대수: 16대
외부마감: 벽돌타일, 노출콘크리트, 로이삼중유리
설계: Studio22 (이동우, 서나영, 전가영)

