




















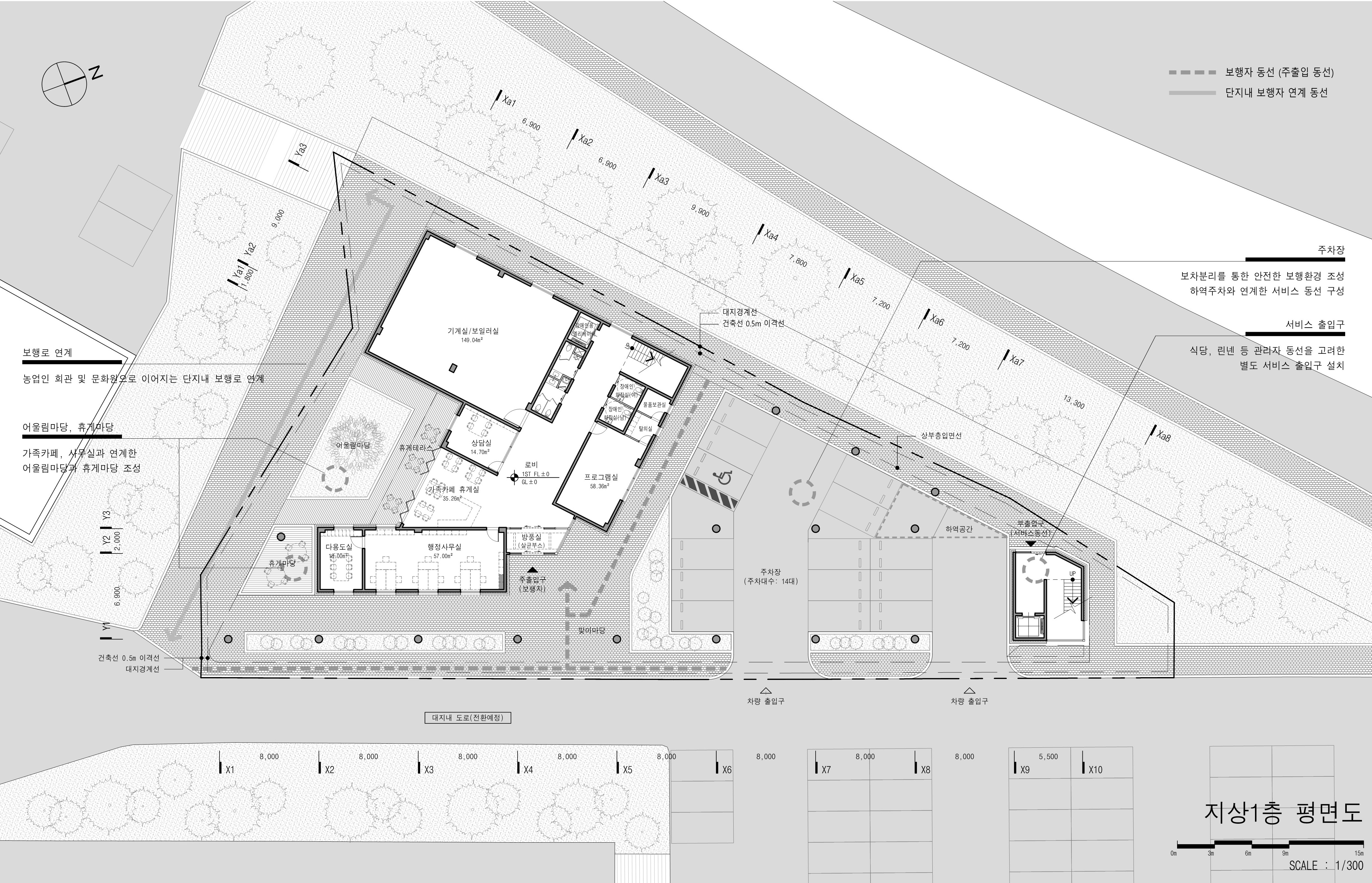
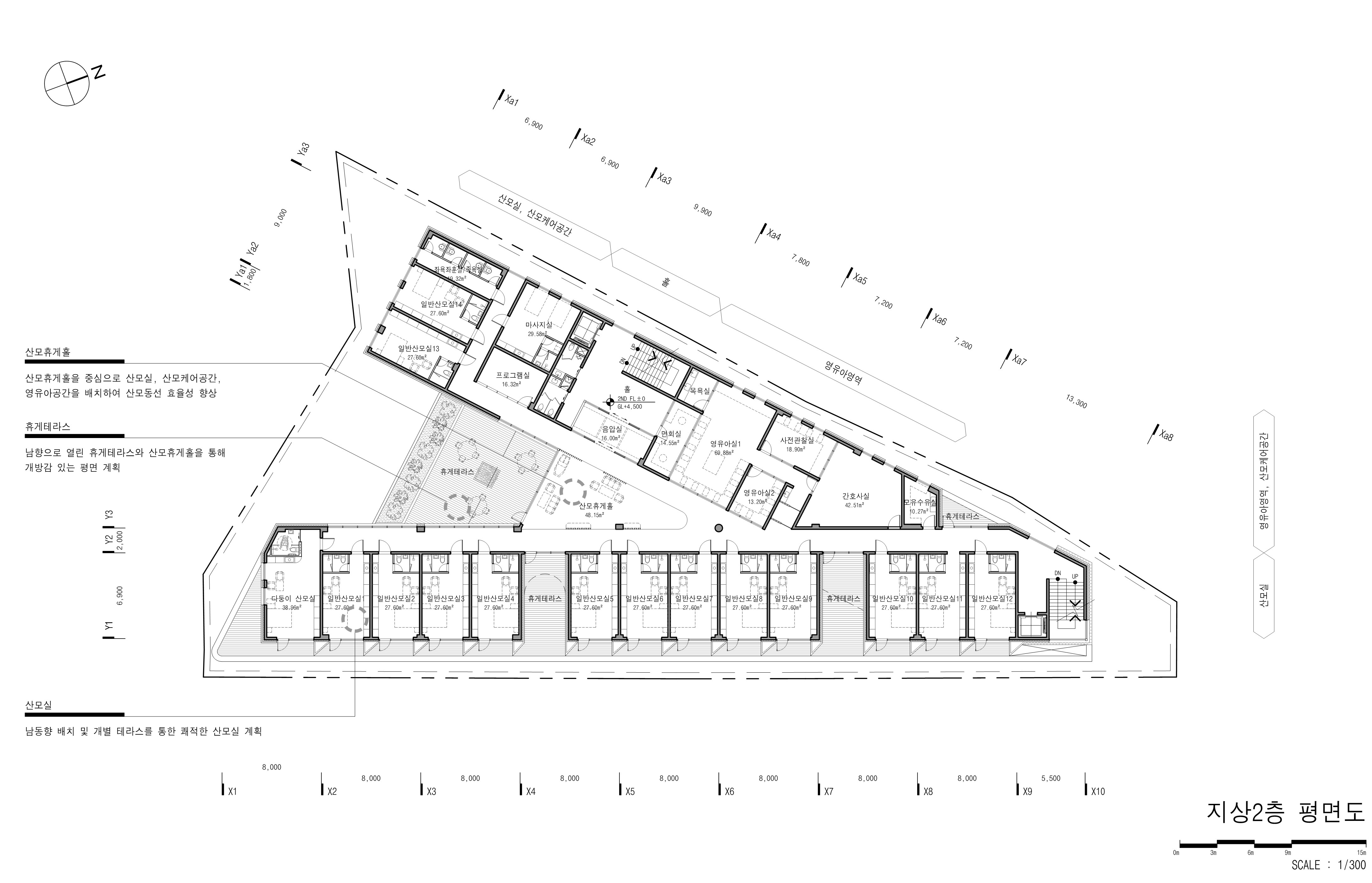
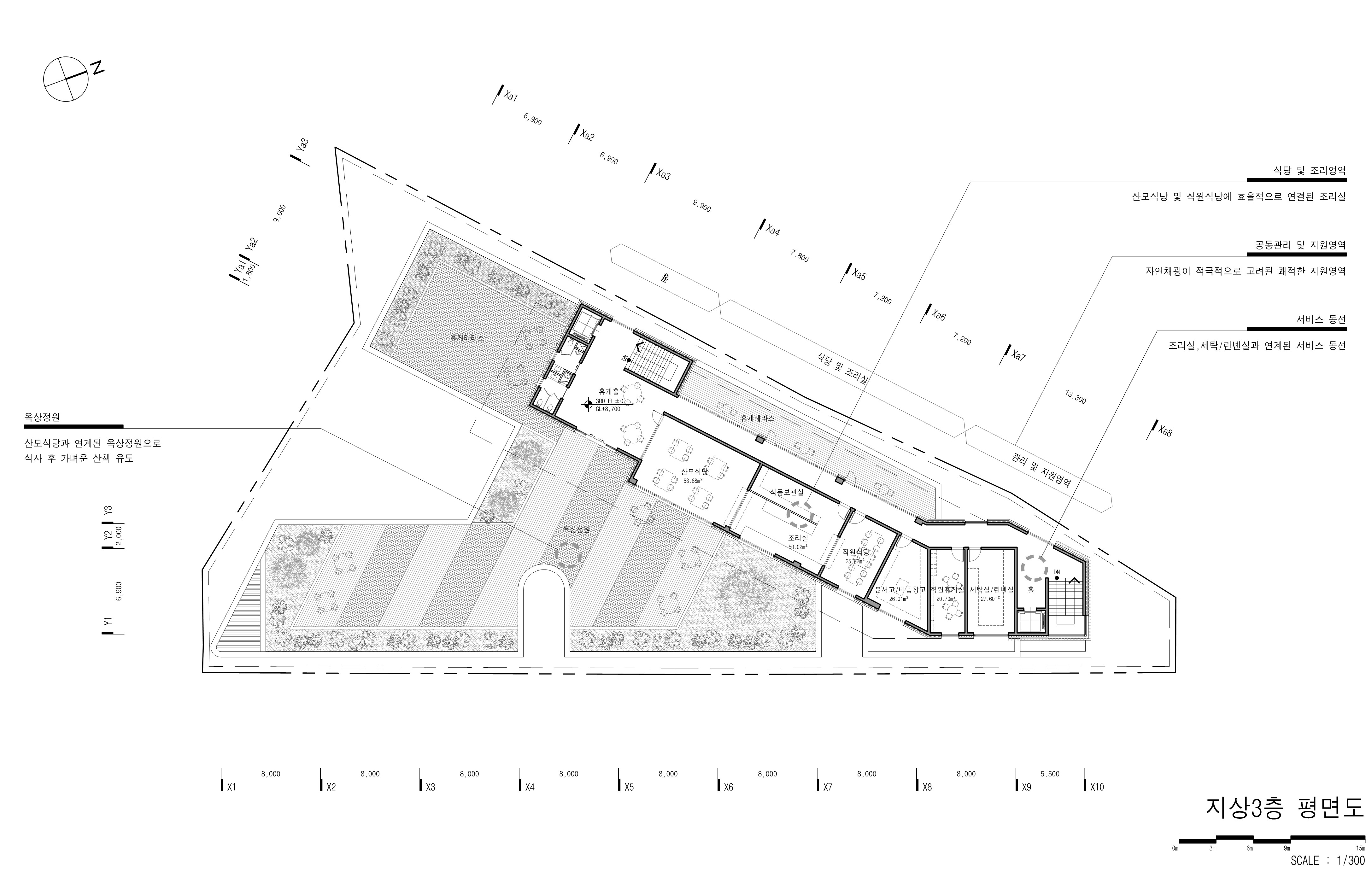
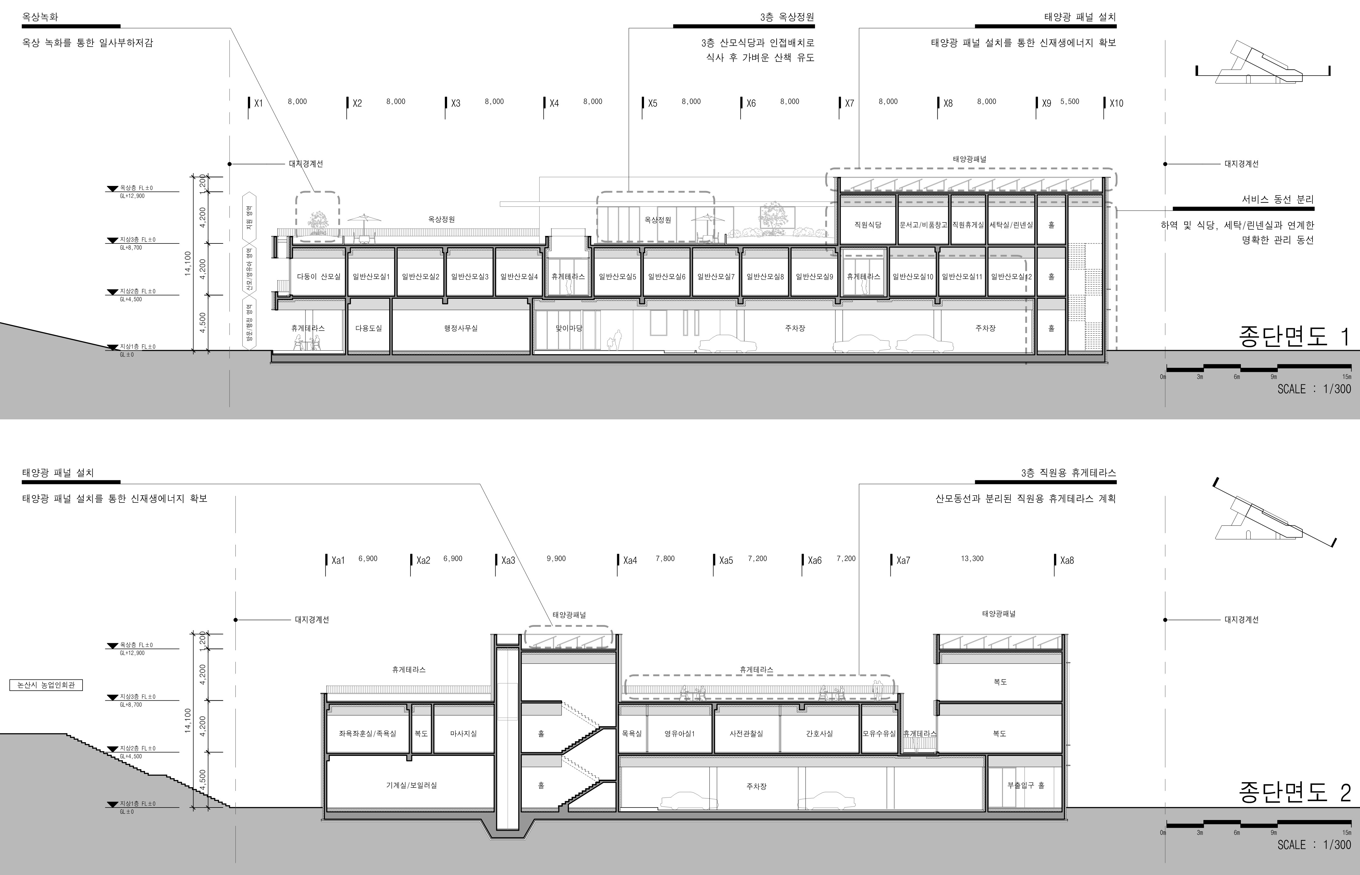
햇살마루 (논산 공공산후조리원 설계공모안)
대지위치: 충청남도 논산시 지산동
대지면적: 1,837㎡
지역지구: 도시지역, 자연녹지지역, 시가지경관지구
용도: 근린생활시설 (산후조리원)
규모: 지상3층
구조: 철근콘크리트구조
건축면적: 1,288.13㎡
건폐율: 4.68%
연면적: 1,873.96㎡
용적률: 7.84%
주차대수: 14대
외부마감: 테라코타패널, 외단열미장마감, 합성목재패널, 로이삼중유리
설계: Studio22 (이동우, 황지영)

