

















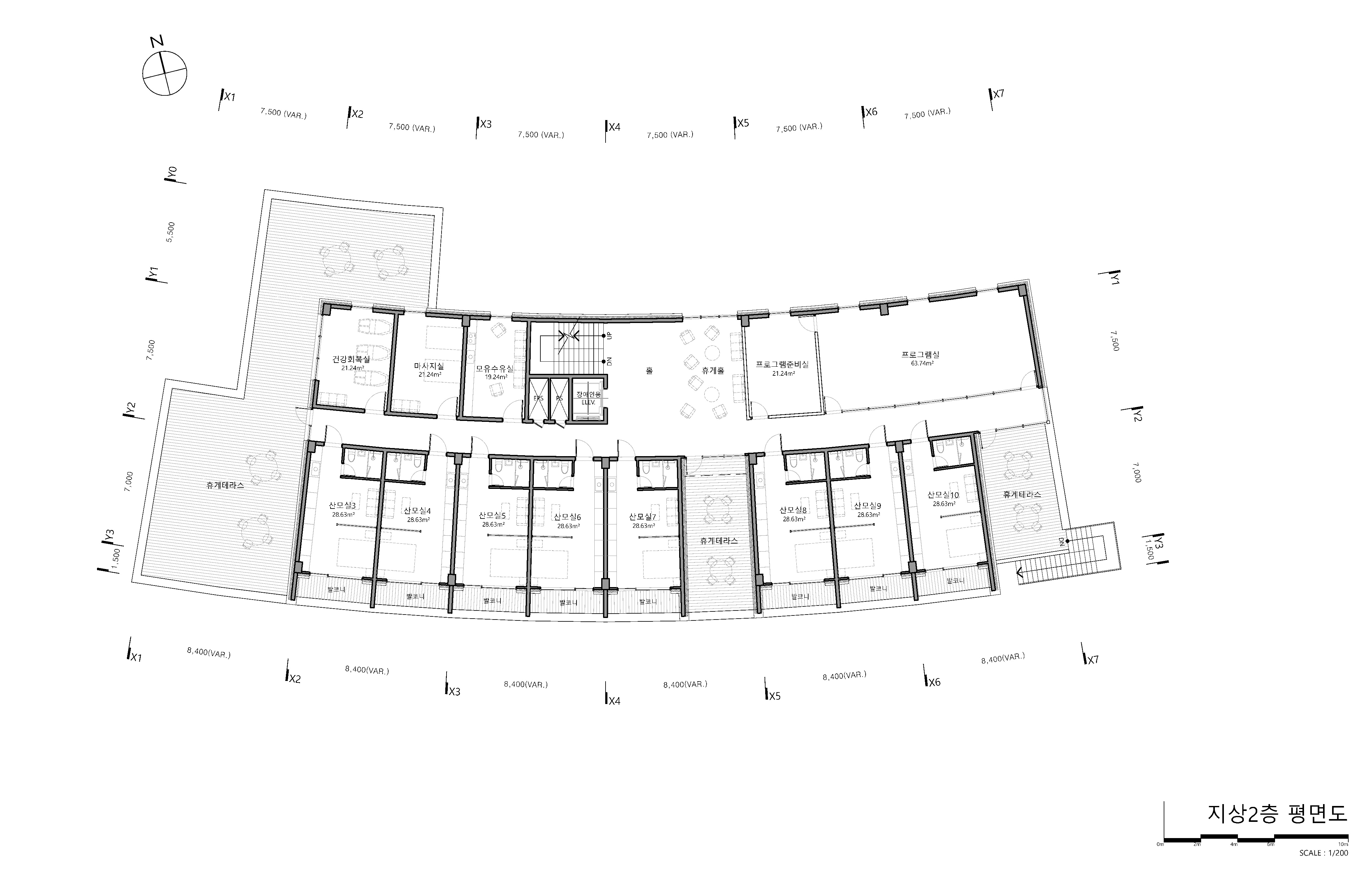
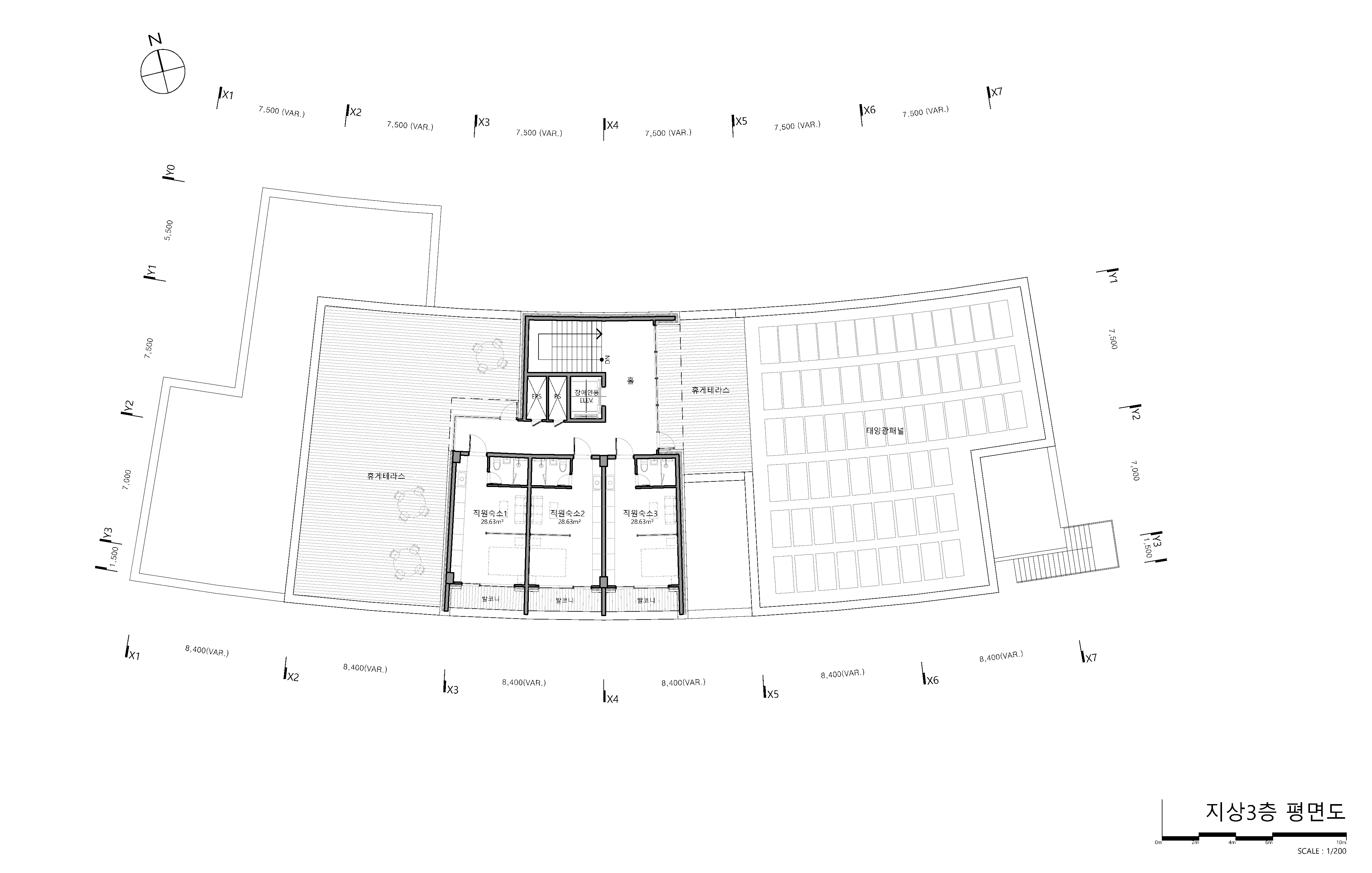
YoungWorld-Pod (영월 공공산후조리원 설계공모안)
대지위치: 강원도 영월군 영월읍
대지면적: 5,545㎡
지역지구: 도시지역, 제1종일반주거지역
용도: 근린생활시설 (산후조리원)
규모: 지하1층, 지상3층
구조: 철근콘크리트구조
건축면적: 804.82㎡
건폐율: 14.51%
연면적: 1,240.55㎡
용적률: 21.38%
주차대수: 15대
외부마감: 테라코타패널, 외단열미장마감, 로이삼중유리
설계: Studio22 (이동우, 서나영)

