




대지는 성북구 정릉동으로, 정릉주차장과 인접하며 북한산으로 올라가는 초입에 위치한다.
기존의 노후된 탐방안내소를 대체하며 탐방객에게 공원탐방 정보제공 및 탐방프로그램, 홍보 등의 역할을 하기 위한 건축물이다.
북한산이란 자연을 알리고 잘 보존하기 위한 건축물이기에, 건축물 자체의 형태가 선명하게 드러나기 보다는 원래 경사지형에 순응하며 차분하고 희미하게 드러나 보이길 원했다.
대지에 접해있는 비오톱 구역과 생태축을 고려하여 건축물을 배치하고, 지형훼손을 최소화한 단면을 계획하여 북한산 산세와 어우러지는 스카이라인을 만들었다.
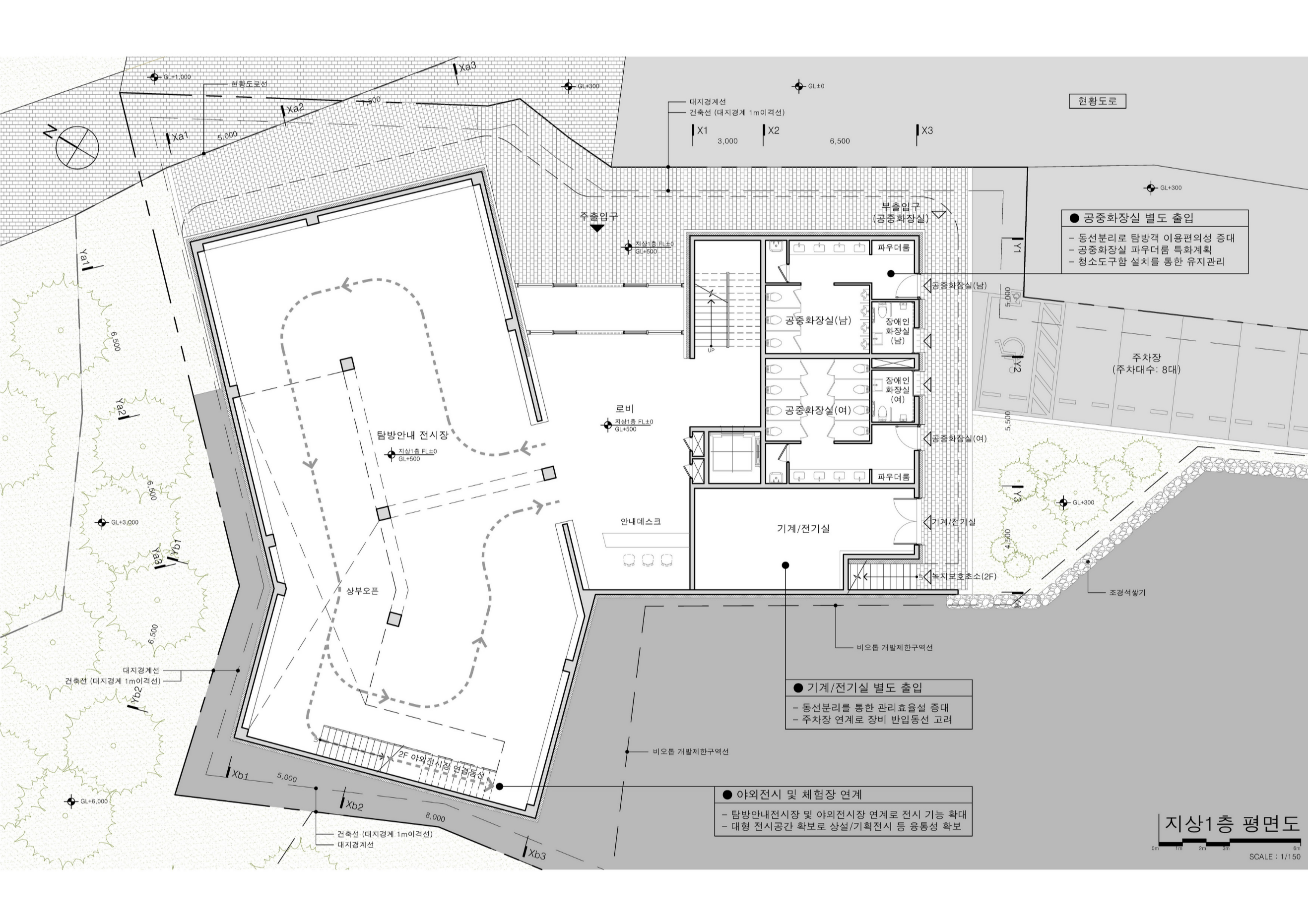
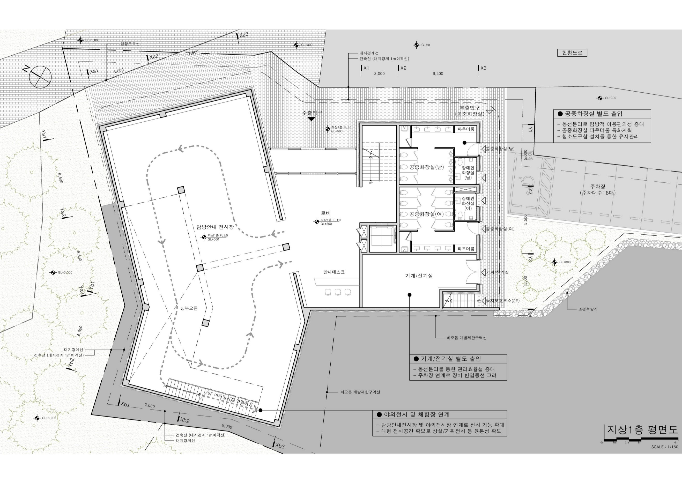
내부 공간이용 효율성을 고려하여 탐방안내영역과 관리영역을 분리하고, 탐방객 편의를 위한 공중화장실을 별도 출입하도록 구성했다.
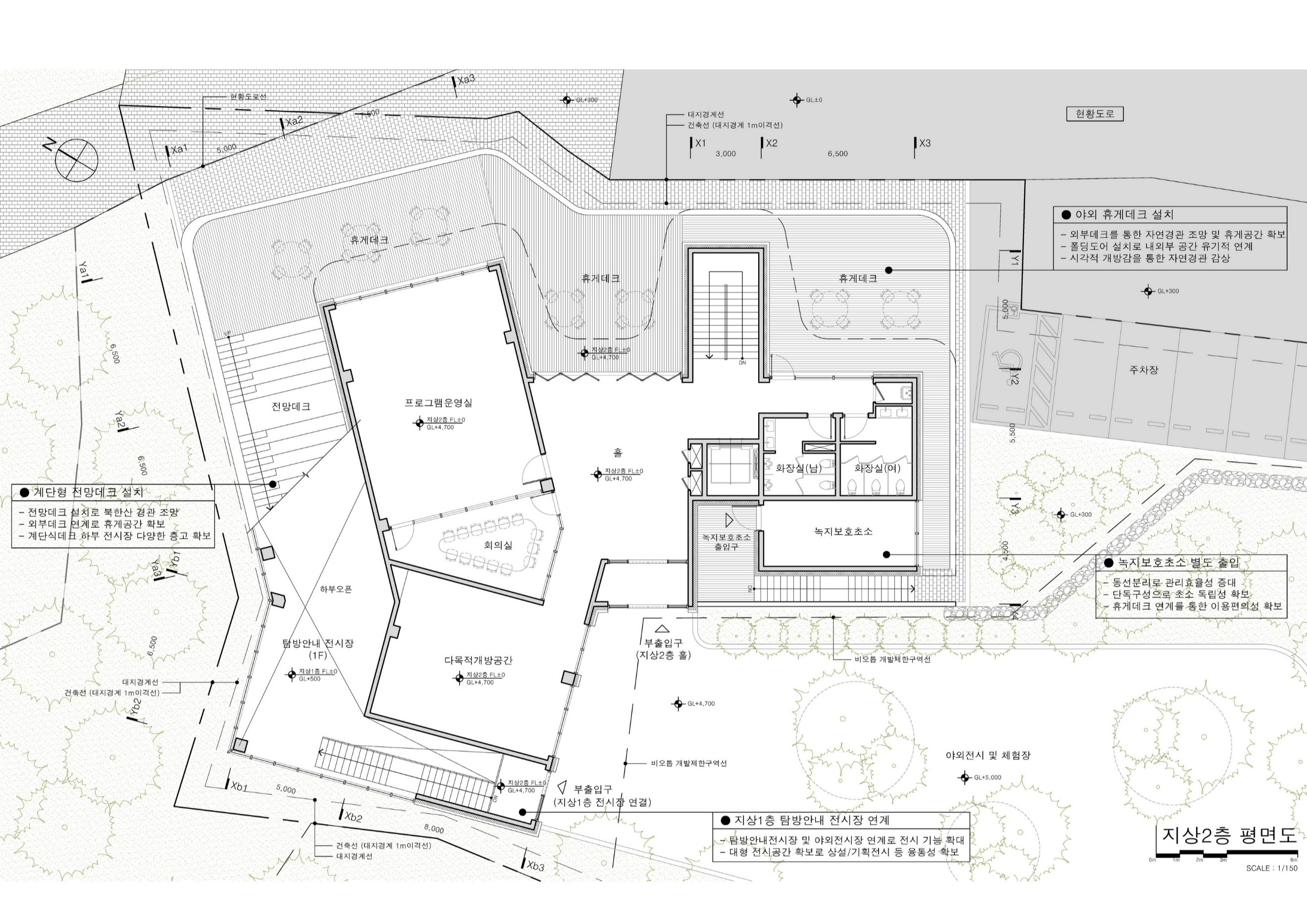
외부데크 형성으로 외부 휴게공간을 충분히 조성하고, 시각적 개방감을 통한 북한산 자연경관 및 생태하천을 조망하는데 유리하도록 계획했다.
시각적 개방감을 느끼며 북한산 자연경관 및 생태하천을 조망하는데 유리하도록 휴게데크, 전망데크 등의 외부공간을 적극적으로 조성했다.
북한산의 상징성을 고려한 자연석 켜쌓기로 주 외장재를 적용하고, 북한산 자생수종과 조화되는 자연 색채를 사용하여 국립공원의 이미지를 반영했다.












북한산국립공원 탐방안내소 (설계공모 입상작)
대지위치: 서울시 성북구 정릉동
대지면적: 1,710.00㎡
지역지구: 도시지역, 자연녹지지역
용도: 문화 및 집회시설 (회의장)
규모: 지상2층
구조: 철근콘크리트구조
건축면적: 555.53㎡
건폐율: 32.37%
연면적: 818.45㎡
용적률: 47.86%
주차대수: 8대
외부마감: 자연석켜쌓기, 노출콘크리트, 스틸루버
설계: Studio22 (이동우, 서나영)

